Fabrik Bühler Areal

Das Gebäude der Spinnerei 2 und 3 aus den 80er Jahren ist funktional konzipiert: drei Hallen, zwei davon gestapelt, werden durch einen Lateralbau verbunden. Die grossflächigen Hallen mit je 3500m2 Grundfläche, zusammen rund zwei Fussballfelder gross, werden durch den kleinteiligen Servicetrakt mit Infrastruktureinrichtungen versorgt. Die Transformation erfolgt primär mit drei Massnahmen:
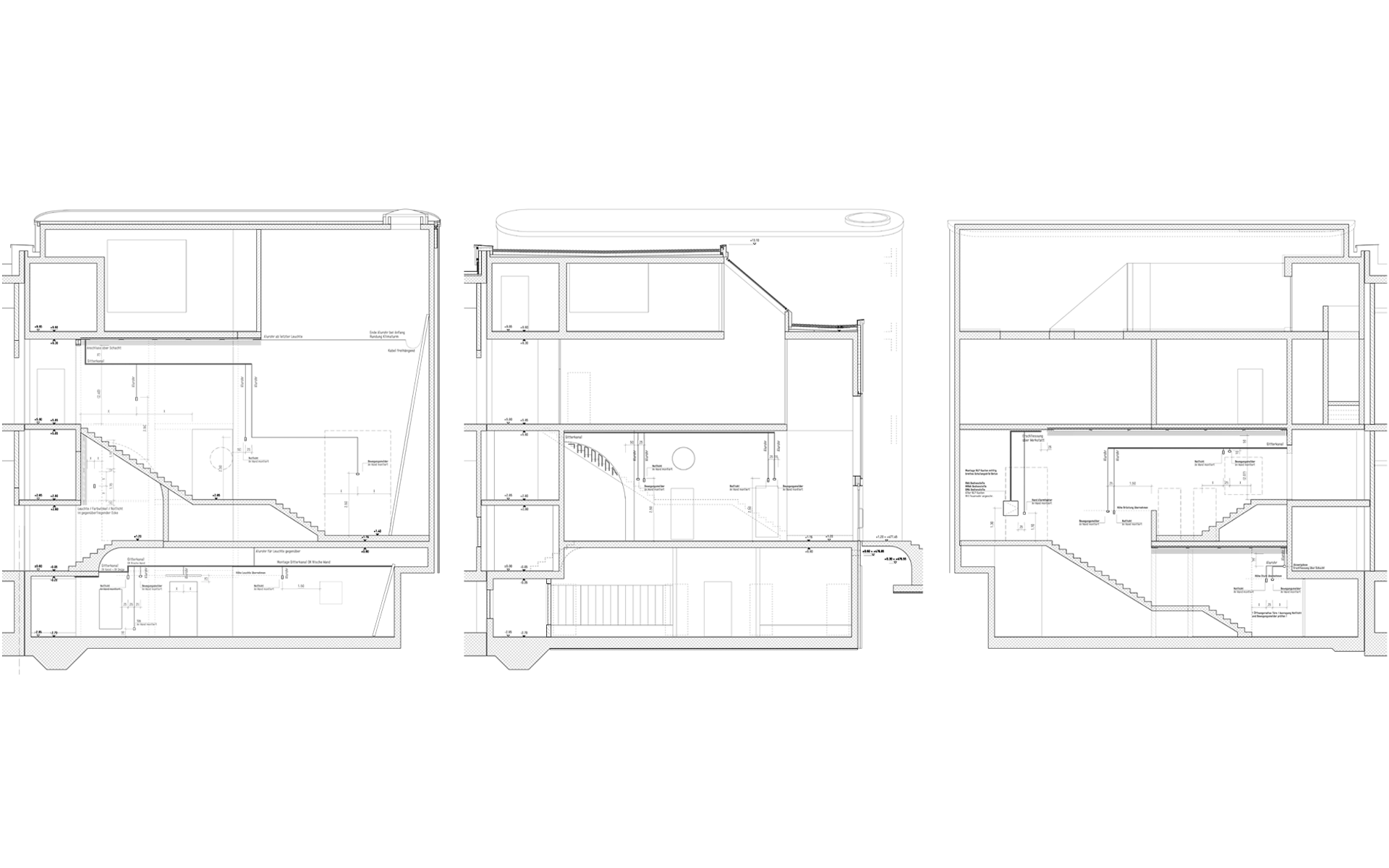
1. Die Gebäudehülle wird für Nutzungen geöffnet und energetisch saniert, wobei Ihr spezifischer Charakter mit analogen Elementen ergänzt und pointiert wird. 2. Neue Erschliessungsachsen sowohl im Aussenraum als auch in den Hallen zonieren, verbinden und organisieren die variabel einteilbaren Nutzflächen. 3. Der Klimaturm II wird zum neuen Eingang und sozialräumlichen Zentrum des divers genutzten Gebäudes. Die Treppen verbinden die Längskorridore, die ins Technikgeschoss eingebaute Parkgarage, die Garderobe, das Sitzungszimmer und den Pausenraum für alle sowie die öffentliche Dachterrasse.
1. Die Gebäudehülle wird für Nutzungen geöffnet und energetisch saniert, wobei Ihr spezifischer Charakter mit analogen Elementen ergänzt und pointiert wird. 2. Neue Erschliessungsachsen sowohl im Aussenraum als auch in den Hallen zonieren, verbinden und organisieren die variabel einteilbaren Nutzflächen. 3. Der Klimaturm II wird zum neuen Eingang und sozialräumlichen Zentrum des divers genutzten Gebäudes. Die Treppen verbinden die Längskorridore, die ins Technikgeschoss eingebaute Parkgarage, die Garderobe, das Sitzungszimmer und den Pausenraum für alle sowie die öffentliche Dachterrasse.






















Texte Davos Kriterien (Selbstevaluation)
Gouvernanz
‘Nach 204 Jahren ist Schluss. Die letzte Baumwollspinnerei der Schweiz stellt den Betrieb ein.’ So die NZZ im Juni 2016. Die idyllisch, an der Töss gelegene Textilfabrik mit dem historischen Gebäude 1 sowie der Spinnerei 2 und 3 aus den 80ern war nutzungsbefreit. Die Transformation, gesteuert von der Hermann Bühler AG, wurde nach der Planerwahl strukturiert, im Austausch mit Behörden und Nachbarn, vom Masterplan bis zur Vermietung, innert 6 Jahren realisiert.
Funktionalität
Neben der funktionalen Struktur, welche dem Bestand als neuer Layer hinzugefügt wurde,
war die Schaffung von Sozialräumen, Orte und Wege, wo sich die Mieter begegnen, treffen und austauschen können von grosser Wichtigkeit. Ein Moment zur Bildung von Aufenthaltsqualität und Identitätsbildung: Eingangshalle, Garderoben-Duschen-Raum, Sitzungszimmer, Pausenbereich mit Küche und Balkon sowie Dachterrasse.
war die Schaffung von Sozialräumen, Orte und Wege, wo sich die Mieter begegnen, treffen und austauschen können von grosser Wichtigkeit. Ein Moment zur Bildung von Aufenthaltsqualität und Identitätsbildung: Eingangshalle, Garderoben-Duschen-Raum, Sitzungszimmer, Pausenbereich mit Küche und Balkon sowie Dachterrasse.
Umwelt
Kredo war, so viel wie möglich belassen, so wenig wie nötig addieren. Im arealeigenen Wasserkraftwerk wird klimafreundliche und erneuerbare Energie produziert. Diese nachhaltige Stromproduktion, auch von Privathaushalten genutzt, wird heute durch die grossflächige PV-Anlage auf dem Dach der Fabrik ergänzt. Zudem wurde mittels Fernwärmeanschluss und energetischer Sanierung der Gebäudehülle der Energieverbrauch stark reduziert.
Wirtschaft
Wo bestehende Strukturen nicht bereits eine wirtschaftliche Einheit definieren, werden die Mieteinheiten mit rückbaubaren Leichtbauwänden unterteilt. Die rück- und wiederaufbaubare Montage der Wände ermöglicht eine langfristige Variabilität insbesondere der grossen Hallenbereiche in ihrer Nutzung. Der gleichen Idee der Adaptierbarkeit folgen die offen montierten haustechnischen Installationen.
Vielfalt
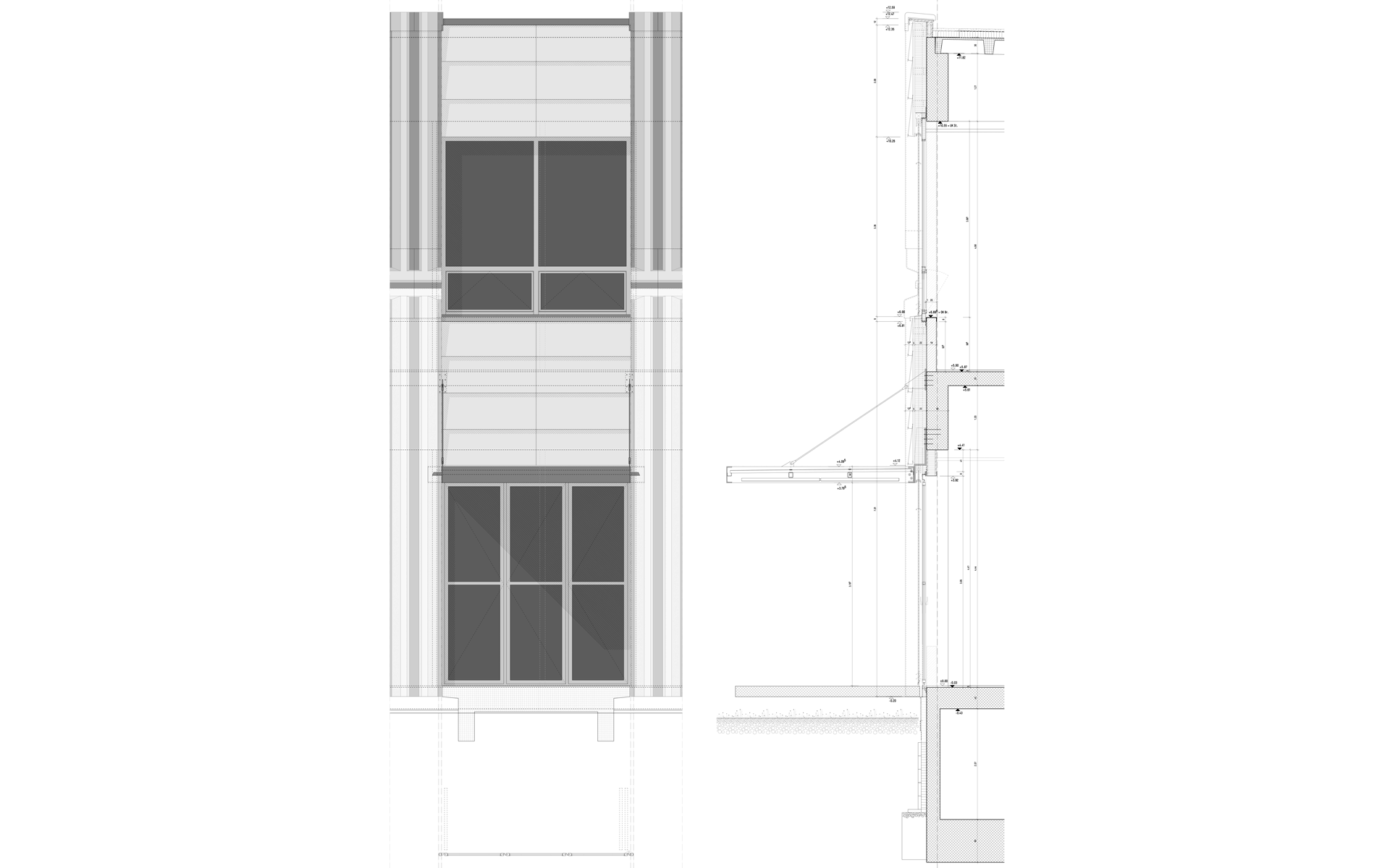
Nutzungsvielfalt bedeutet natürliche Belichtung und Belüftung. So wurden die Eternit-Canaleta-Platten verkleideten Fassadenflächen im Rhythmus der Hallenstruktur geöffnet.
So bieten die Hallen zusammen mit dem Servicetrakt eine grosse Anzahl Optionen für unterschiedlichste Gewerbeflächen, welche eine hohe Diversität an Nutzern verspricht. Function follows form.
So bieten die Hallen zusammen mit dem Servicetrakt eine grosse Anzahl Optionen für unterschiedlichste Gewerbeflächen, welche eine hohe Diversität an Nutzern verspricht. Function follows form.
Kontext
Trotz Eigenständigkeit des Fabrikareals im ländlichen Umfeld beginnen sich Verbindungen zur Nachbarschaft aufzubauen. Erst kürzlich bekundete das benachbarte Bauernpaar, dass Sie öfters die Schaukel an der Nordwest-Ecke des Areals nutzend, die neue Perspektive auf ihr Zuhause und die Kyburg schätzen und sich über die erfolgte Entwicklung des Areals, entgegen der anfänglichen Skepsis, freuen.
Genius Loci
Die Atmosphäre des Fabrikareals sollte bleiben. So wurden viele Elemente an Ort und Stelle weiterverwendet. Einzelne Materialien wurden auf dem Areal gesammelt und fanden eine Wiederverwendung. Fassaden- und Zementplatten, Heizkörper, Waschtröge bis hin zu Stahlprofilen, aus welchen neu zusammengefügt und verzinkt, Leuchten und die Pavillons im Freiraum konstruiert wurden.
Schönheit
Ziel war die ungezwungene Schönheit: der Bestand ergänzt mit analogen Materialien, mit neuen Farben kontrastiert und durch verfremdete Elemente pointiert. Dazu ein rechteckiger Saum, der die Fabrik umspannt. Offene und geschlossene Gittersteine, horizontal und vertikal verlegt verwischen Anschlüsse und schaffen ökologische Ausgleichsflächen. Ergänzend zeichnen Stahlpavillons an drei Arealecken.
Eigenschaften
Ort
Sennhof-Winterthur
Baukategorie (SIA 102)
Industrie und Gewerbe
Art der Aufgabe
Umbau
Art des Verfahrens
Wettbewerb
Beschaffungsform
Einladungsverfahren
Baukosten in CHF (SIA 416)
17'000'000
Geschossfläche in m² (SIA 416)
12'300
Planung
2017 → 2020
Fertigstellung
2020 → 2023
Inbetriebnahme
2023
Projektbeteiligte
Architektur
Bauherrschaft
Bauingenieurwesen
HLKS-Planung
Landschaftsarchitektur