Ancien Manège

Le Manège, construit en 1929 et transformé en garage dans les années 1950, suite à un processus participatif est rénové pour accueillir un programme public pour le quartier.
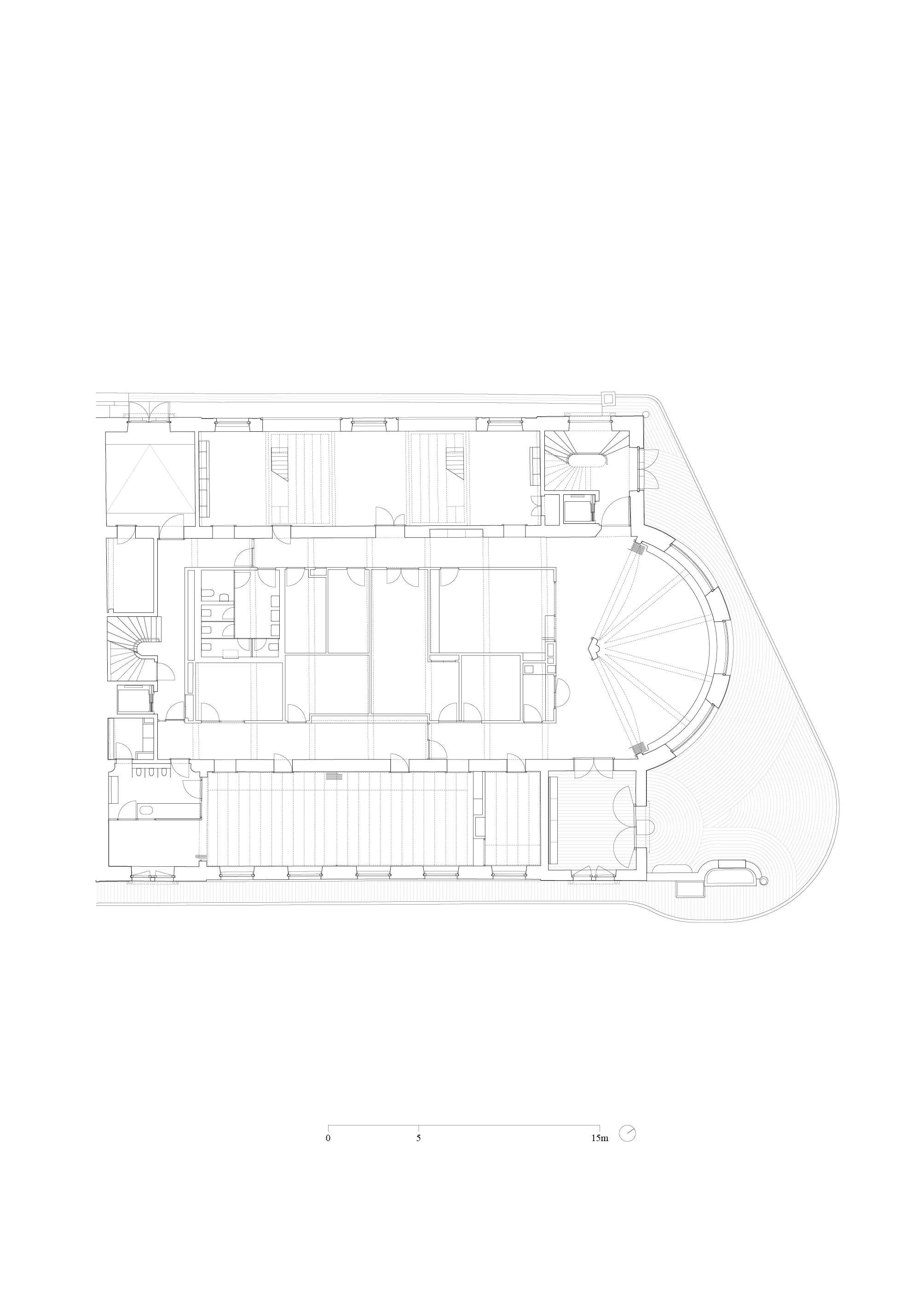
Le point de départ du projet est la compréhension de la configuration spatiale et constructive du bâtiment pour sa transformation en un bâtiment civique avec un minimum d’intervention lourde.
Le projet propose la réutilisation des éléments structurels des années 1950, combinés avec des démolitions choisies et ajouts minimaux utilisant les qualités atmosphériques du bâtiment, avec le but de rétablir sa clarté spatiale et redéfinir sa présence sociale et urbaine.
Le projet recherche l'équilibre entre l’optimisation de l’enveloppe thermique et la conservation des valeurs patrimoniales du bâtiment.
L’utilisation du bois comme matériau principal des ajouts permet d’éventuelles modifications futures, comprenant l'intervention comme une nouvelle étape du processus de transformation de l’Ancien Manège.
Le point de départ du projet est la compréhension de la configuration spatiale et constructive du bâtiment pour sa transformation en un bâtiment civique avec un minimum d’intervention lourde.
Le projet propose la réutilisation des éléments structurels des années 1950, combinés avec des démolitions choisies et ajouts minimaux utilisant les qualités atmosphériques du bâtiment, avec le but de rétablir sa clarté spatiale et redéfinir sa présence sociale et urbaine.
Le projet recherche l'équilibre entre l’optimisation de l’enveloppe thermique et la conservation des valeurs patrimoniales du bâtiment.
L’utilisation du bois comme matériau principal des ajouts permet d’éventuelles modifications futures, comprenant l'intervention comme une nouvelle étape du processus de transformation de l’Ancien Manège.

























Texte Davos Kriterien (Selbstevaluation)
Gouvernanz
*Le projet est issu d'une démarche participative menée par l'association "Manège pour Tous" et d'un concours ouvert organisé par la Ville de Genève.
*Il reflète un engagement en faveur de l'inclusion et de l'engagement communautaire à travers sa conception d’espaces polyvalentes. *Le projet rassemble une crèche, une ludothèque, un restaurant scolaire, une maison de quartier et espaces mutualisées sous un même toit et favorise un système de gouvernance partagée par le biais de l'holacratie.
*Il reflète un engagement en faveur de l'inclusion et de l'engagement communautaire à travers sa conception d’espaces polyvalentes. *Le projet rassemble une crèche, une ludothèque, un restaurant scolaire, une maison de quartier et espaces mutualisées sous un même toit et favorise un système de gouvernance partagée par le biais de l'holacratie.
Funktionalität
* Le projet se concentre sur une réutilisation adaptative d'un bâtiment historique, créant des espaces fonctionnels et polyvalents pour les différents besoins du quartier.
*La conception du projet favorise une utilisation ouverte et non spécifique d'une série d'espaces partagés.
* Le projet favorise l'adaptabilité aux besoins changeants des habitants du quartier à l'avenir.
*La conception du projet favorise une utilisation ouverte et non spécifique d'une série d'espaces partagés.
* Le projet favorise l'adaptabilité aux besoins changeants des habitants du quartier à l'avenir.
Umwelt
*Dans sa conception en 2015, le projet de l'Ancien Manège a été pionnier à Genève dans l'idée de réemploi et économie circulaire, réduisant l'empreinte carbone de la construction.
*L'optimisation de l'enveloppe thermique et l'intégration soignée des installations techniques réduisent l'empreinte carbone lors de l'utilisation du bâtiment.
*L'utilisation de bois et de matériaux durables contribue à la réduction l'empreinte carbone dans le cycle de vie à long terme du bâtiment.
*L'optimisation de l'enveloppe thermique et l'intégration soignée des installations techniques réduisent l'empreinte carbone lors de l'utilisation du bâtiment.
*L'utilisation de bois et de matériaux durables contribue à la réduction l'empreinte carbone dans le cycle de vie à long terme du bâtiment.
Wirtschaft
*En conservant la structure du bâtiment existant, le projet minimise les coûts, prolongeant le cycle de vie de la structure existante.
*Le projet donne la priorité à des matériaux et à des processus de construction robustes et durables, qui contribuent à la viabilité économique à long terme.
*L'approche du projet en matière de réutilisation, de construction, de maintenance et d'exploitation indépendante contribue à une rentabilité économique et sociale à long terme du projet.
*Le projet donne la priorité à des matériaux et à des processus de construction robustes et durables, qui contribuent à la viabilité économique à long terme.
*L'approche du projet en matière de réutilisation, de construction, de maintenance et d'exploitation indépendante contribue à une rentabilité économique et sociale à long terme du projet.
Vielfalt
*Le projet favorise la mixité sociale et économique en accueillant une gamme d'espaces communautaires contribuant à la diversité sociale.
* Partageant une entrée commune, le bâtiment est conçu pour encourager l'interaction entre différents groupes sociaux, améliorant l'intégration sociale.
* Le projet vise à prévenir la gentrification et à promouvoir un sentiment d'identité partagée et d'appropriation au sein de la communauté.
* Partageant une entrée commune, le bâtiment est conçu pour encourager l'interaction entre différents groupes sociaux, améliorant l'intégration sociale.
* Le projet vise à prévenir la gentrification et à promouvoir un sentiment d'identité partagée et d'appropriation au sein de la communauté.
Kontext
*Le projet reconnaît la valeur historique et patrimoniale du bâtiment existant et de son contexte urbain.
*Le projet s'adapte aux exigences techniques et programmatiques établissant une conversation entre les nouveaux éléments et ceux déjà sur place.
*L'intégration des méthodes de construction et des métiers traditionnels et contemporains permet au bâtiment de s'inscrire dans son contexte matériel et culturel.
*Le projet s'adapte aux exigences techniques et programmatiques établissant une conversation entre les nouveaux éléments et ceux déjà sur place.
*L'intégration des méthodes de construction et des métiers traditionnels et contemporains permet au bâtiment de s'inscrire dans son contexte matériel et culturel.
Genius Loci
*Le projet vise à créer un lien privilégié avec la communauté locale en renforçant le sentiment d'appartenance.
*Il reconnaît l'importance de maintenir et de développer l'identité et l'histoire de l'Ancien Manège, en renforçant l'attachement émotionnel au lieu.
*Dérivé d'une démarche participative locale, le projet favorise le sentiment d'appartenance et d'attachement des gens du quartier.
*Il reconnaît l'importance de maintenir et de développer l'identité et l'histoire de l'Ancien Manège, en renforçant l'attachement émotionnel au lieu.
*Dérivé d'une démarche participative locale, le projet favorise le sentiment d'appartenance et d'attachement des gens du quartier.
Schönheit
*Le projet vise à trouver et révéler la beauté de ce qui existe déjà, de ce qui est trouvé, trouver de la valeur dans ce que les autres ont fait avant nous.
*L'intention du projet n'est pas d'établir un nouveau langage formel opposé à l'existant, mais plutôt d'établir une conversation entre les nouveaux éléments et ceux déjà en place.
*Cette approche ne vise pas un attrait superficiel, mais une beauté subtile qui nécessite un engagement physique avec la présence matérielle du bâti.
*L'intention du projet n'est pas d'établir un nouveau langage formel opposé à l'existant, mais plutôt d'établir une conversation entre les nouveaux éléments et ceux déjà en place.
*Cette approche ne vise pas un attrait superficiel, mais une beauté subtile qui nécessite un engagement physique avec la présence matérielle du bâti.
Eigenschaften
Ort
Genève
Baukategorie (SIA 102)
Kultur und Geselligkeit
Art der Aufgabe
Umbau
Art des Verfahrens
Wettbewerb
Beschaffungsform
Offenes Verfahren
Baukosten in CHF (SIA 416)
16'000'000
Geschossfläche in m² (SIA 416)
2'435
Planung
2015 → 2018
Fertigstellung
2019 → 2021
Inbetriebnahme
2021
Projektbeteiligte
Bauherrschaft
Architektur
Bauingenieurwesen
HLKS-Planung