Alto Pont-Rouge

Le projet Alto Pont-Rouge s’inscrit dans la continuité de la première étape réalisée par Pont 12 Architectes SA. La volonté du maître d’ouvrage était de s’aligner aux réalisations du quartier, tout en proposant un produit haut de gamme. La grille minérale du quartier, réunie en hauteur, offre un élancement aux volumes projetés et un apport important de lumière. Le socle du bâtiment crée un rapport dense avec l’esplanade et lui confère une échelle humaine. Ce socle commercial est surélevé de quatre étages administratifs en Z. La morphologie générée crée une multitude de percées visuelles et minimise les vues croisées entre bâtiments. Pour finir, deux émergences surplombent la structure. Afin d’enrichir le programme de ce nouveau quartier d’affaires, une galerie marchande au rez-de-chaussée, un centre de conférences, un fitness et des espaces de rencontre sur différents étages complètent l’ensemble. Les labels Minergie et SNBS Platinium certifient les vertus écologiques du projet.
























Texte Davos Kriterien (Selbstevaluation)
Gouvernanz
Dans le cadre du projet Alto Pont-Rouge, la bonne visualisation du fonctionnement des installations techniques est fondamentale pour une exploitation efficace et des optimisations permettant l’atteinte des performances visées. Le système de comptage et de régulation installé assure une vision globale des installations (chauffage, refroidissement, ventilation, éclairage, gestion de l’eau, production d’énergie locale) permettant le suivi et l’optimisation énergétique selon les besoins.
Funktionalität
Afin d’accorder une plus grande souplesse à l’aménagement des plateaux, les architectes ont proposé une trame de 1.35m pour l’ensemble du bâtiment. Celle-ci permet d’accueillir tout type de surfaces administratives, qu’il s’agisse de plateaux en open-space, de bureaux individuels ou de salles de réunion.
Umwelt
Afin de répondre aux enjeux écologiques d’aujourd’hui, le bâtiment Alto Pont-Rouge s’intègre dans une démarche de construction durable avec pour objectif de respecter les cahiers des charges SNBS et Minergie. Dans ce cadre, des installations techniques efficientes sont conçues pour permettre une flexibilité d’aménagement des surfaces locatives avec une limitation de la consommation énergétique globale liée à l’exploitation des locaux.
Wirtschaft
Le projet Alto Pont-Rouge s’inscrit dans la continuité de la première étape de construction du quartier du PAV, réalisée par Pont 12 architectes SA. Le Maître d’ouvrage a souhaité à la fois proposer une harmonie avec ces premières pièces urbaines, tout en se singularisant avec un produit haut de gamme. La grille minérale, caractéristique du quartier, est exprimée sur des modules en double hauteur. Il en ressort ainsi un élancement et une élégance des volumes projetés.
Vielfalt
Alto Pont-Rouge fait partie du nouveau quartier d’affaires du PAV (Praille-Acacias-Vernets), qui préconise des secteurs pour les logements et les emplois. L’esplanade de Pont-Rouge se veut comme son pôle administratif et commercial et Alto Pont-Rouge y contribue avec des surfaces administratives et une galerie marchande. A l’intérieur, des véritables lieux de vie sont projetés à des endroits stratégiques du bâtiment, servant à la rencontre entre les différents utilisateurs.
Kontext
Le bâtiment est composé d’un socle d’hauteurs variées, qui permet un rapport plus dense avec l’esplanade et confère au quartier une échelle humaine, grâce à une lisibilité forte et claire des alignements entre les constructions. Ce socle est surélevé de 4 étages en Z qui génèrent une grande diversité de percées visuelles, minimisant par la même occasion les vues croisées entre bâtiments.
Genius Loci
Au premier étage, un grand atrium distribue l’ensemble des surfaces administratives du bâtiment. Cet espace se veut multifonctionnel par sa géométrie et son affectation. Une grande verrière permet l’entrée de la lumière au cœur du bâtiment et génère des échanges visuels entre les différents locataires. Des surfaces d’activités disposées autour agrémentent l’offre et animent l’espace.
Schönheit
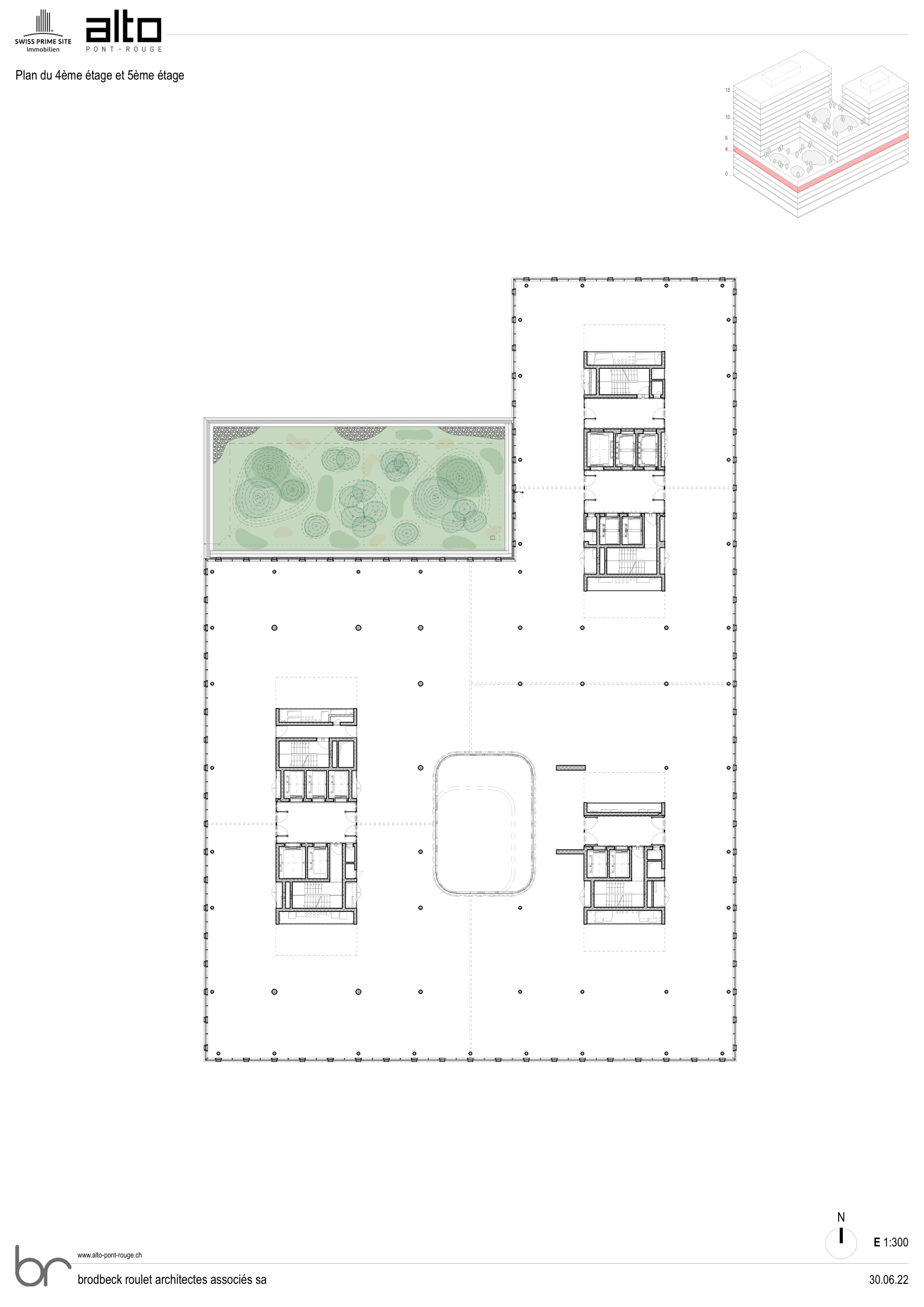
Les terrasses végétalisées du bâtiment, qui se trouvent sur plusieurs niveaux, ont un caractère très organique et chaleureux. Les utilisateurs s’y trouvent dans un îlot de verdure qui contraste avec le contexte urbain du site. Des espaces de travail à l’air libre y sont aménagés ; les locataires qui le souhaitent peuvent alors se rencontrer à l’extérieur, pendant ou en dehors des heures de bureau.
Eigenschaften
Ort
Esplanade de Pont-Rouge 9, 1212 Lancy, Genève
Baukategorie (SIA 102)
Handel und Verwaltung
Art der Aufgabe
Neubau
Art des Verfahrens
Direktauftrag
Baukosten in CHF (SIA 416)
150'000'000
Geschossfläche in m² (SIA 416)
52'000
Planung
2018 → 2020
Fertigstellung
2020 → 2023
Inbetriebnahme
2023
Projektbeteiligte
Bauherrschaft
Swiss Prime Site Immobilien
Architektur
Bauingenieurwesen
Ingeni SA Genève
General-/Totalunternehmung
Akustikplanung
[object Object].de
Signaletik