Immeuble 9 plateaux : Logements LUP pour 93 étudiants et espace d'étude universitaire

Comment proposer un mode de vie propre aux logements d’étudiants basé sur la recherche d’un type d’assemblage des pièces dans une forme triangulaire irrégulière, issue des contraintes réglementaires et morphologiques du site ?
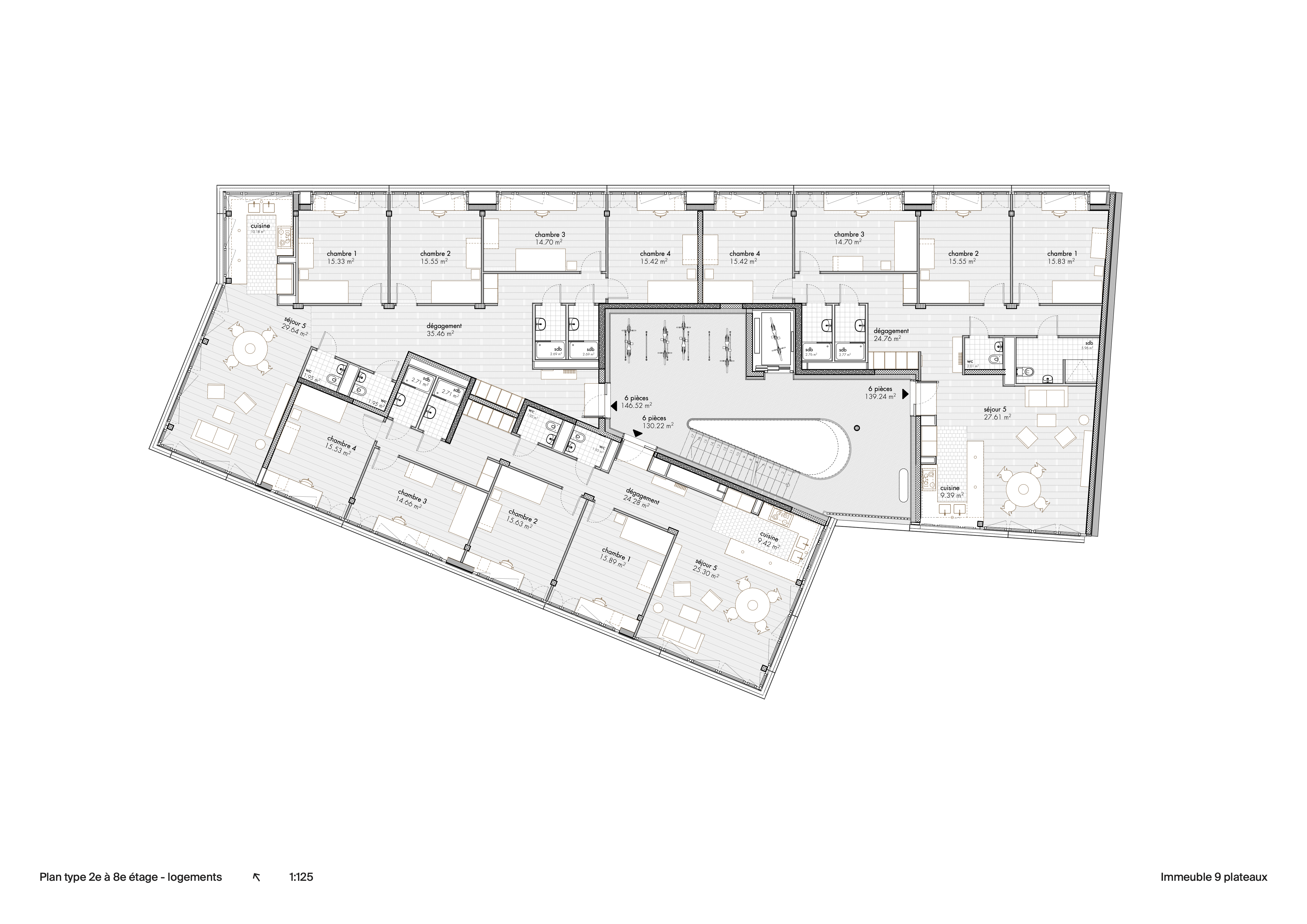
Dans un contexte à priori inconfortable pour envisager du logement, le concours a permis de trouver le juste équilibre entre forme et densité. L’immeuble se distingue par un côté urbain sur l’avenue de Champel et un côté jardin face à l’imposant bâtiment du Centre médical universitaire. Trois appartements par étage s’organisent autour d’un cœur de distribution lumineux aux qualités hybrides : à la fois lieu de mouvements et de rencontres, stockage pour les vélos, palier couvert extérieur substitut du balcon. Le regroupement des chambres est identique pour les 3 appartements alors que la forme variée et la disposition des séjours, déterminées par les orientations favorables à la lumière et à la vue, génèrent une identité propre à chacun.
Dans un contexte à priori inconfortable pour envisager du logement, le concours a permis de trouver le juste équilibre entre forme et densité. L’immeuble se distingue par un côté urbain sur l’avenue de Champel et un côté jardin face à l’imposant bâtiment du Centre médical universitaire. Trois appartements par étage s’organisent autour d’un cœur de distribution lumineux aux qualités hybrides : à la fois lieu de mouvements et de rencontres, stockage pour les vélos, palier couvert extérieur substitut du balcon. Le regroupement des chambres est identique pour les 3 appartements alors que la forme variée et la disposition des séjours, déterminées par les orientations favorables à la lumière et à la vue, génèrent une identité propre à chacun.



















Texte Davos Kriterien (Selbstevaluation)
Gouvernanz
Des maîtres de l’ouvrage éclairés ont su entrevoir le potentiel d’un site dormant en jachère en bordure du site hospitalier. Par la conscience de l’importance de la culture du bâti, le processus de transformation du lieu a été initié par un concours d’architecture et porté par une équipe multidisciplinaire de mandataires en mode de construction traditionnel.
Ainsi, par une greffe urbaine ambitieuse, un lieu sans qualité est devenu un lieu rayonnant et ouvert sur la ville, une nouvelle adresse.
Ainsi, par une greffe urbaine ambitieuse, un lieu sans qualité est devenu un lieu rayonnant et ouvert sur la ville, une nouvelle adresse.
Funktionalität
Dans un contexte exigu de forme triangulaire, la typologie est développée pour donner des qualités spécifiques aux espaces de vie privée et collective des étudiants. Sur chaque plateau, 3 logements de 4 chambres sont réunis autour d’un palier distributif extérieur qui joue les rôles d’accueil des vélos et de lieu d’échange abrité. Le regroupement de 4 étudiants par appartement est à la fois l’équilibre optimal pour la vie estudiantine et un potentiel de conversion future en logements familiaux.
Umwelt
La lutte contre les nuisances du bruit routier et la nature en ville représentent des enjeux de santé pour l’habitat urbain.
La prise en compte des exigences normatives acoustiques fait l’objet d’une résolution spécifique par un dispositif architectural de niche acoustique intégrée à la table de travail des chambres.
La régénération du sol par un milieu arboré à plusieurs strates végétales en pleine terre établit un filtre biologique entre le centre universitaire et le nouveau bâtiment.
La prise en compte des exigences normatives acoustiques fait l’objet d’une résolution spécifique par un dispositif architectural de niche acoustique intégrée à la table de travail des chambres.
La régénération du sol par un milieu arboré à plusieurs strates végétales en pleine terre établit un filtre biologique entre le centre universitaire et le nouveau bâtiment.
Wirtschaft
Le projet, par l’approche non spéculative de la FULE, s’inscrit dans les statuts du LUP (logement d’utilité public genevois) qui garantit le contrôle de l’État pour des loyers accessibles et stables durant 50 ans.
La flexibilité est un des enjeux de la durabilité. Grâce à la structure porteuse ponctuelle du bâtiment, la mixité programmatique est optimisée et l’évolution dans le temps est ouverte à d’autres usages et affectations en poursuivant les ambitions d’utilité sociale de l’opération.
La flexibilité est un des enjeux de la durabilité. Grâce à la structure porteuse ponctuelle du bâtiment, la mixité programmatique est optimisée et l’évolution dans le temps est ouverte à d’autres usages et affectations en poursuivant les ambitions d’utilité sociale de l’opération.
Vielfalt
La contrainte liée à l’absence de vélos dans les deux premiers étages va générer un rapport privilégié entre vélos et habitat pour les logements des étudiants, et libérer des grands espaces au rez et au premier étage pour des salles d’étude « coworking » pour l’université. Ce lieu équipé, « bibliothèque sans livres », propice aux travaux de groupes et aux échanges informels est accessible aux différents étudiants de l’UNIGE et géré de manière participative par une association d’étudiants.
Kontext
Appartenir à un ensemble plus large que le bâtiment lui-même, une recherche de continuité dans le contexte urbain.
La tonalité claire et la matérialité minérale propre au quartier de Champel se trouvent rejouées dans la tectonique de l’édifice, conjuguées avec la grande l’échelle du centre médical universitaire. La présence et le visage de l’immeuble vibrent dans un jeu contrasté de surfaces brillantes et mates, une identité spécifique tissée de différentes matières.
La tonalité claire et la matérialité minérale propre au quartier de Champel se trouvent rejouées dans la tectonique de l’édifice, conjuguées avec la grande l’échelle du centre médical universitaire. La présence et le visage de l’immeuble vibrent dans un jeu contrasté de surfaces brillantes et mates, une identité spécifique tissée de différentes matières.
Genius Loci
L’esprit étudiant du lieu est révélé au travers d’un petit édifice occupé par les jeunes générations dans une visibilité attractive en frange du quartier résidentiel de Champel. Son identité réside dans l’ouverture de l’immeuble sur la ville par l’activation du rez-de-chaussée et du premier étage en une extension bienvenue de la bibliothèque universitaire au contact direct de la vie de la rue.
Les premières réactions du voisinage et des usagers : « on a l’impression qu’il a toujours été là ».
Les premières réactions du voisinage et des usagers : « on a l’impression qu’il a toujours été là ».
Schönheit
A propos de notre conception de l’engagement :
« Sans élégance du cœur, il n’y a pas d’élégance » Yves Saint Laurent
« Sans élégance du cœur, il n’y a pas d’élégance » Yves Saint Laurent
Eigenschaften
Ort
Avenue de Champel 15a, 15b, 15c, 1206 Genève
Baukategorie (SIA 102)
Wohnen
Art der Aufgabe
Neubau
Art des Verfahrens
Wettbewerb
Beschaffungsform
Einladungsverfahren
Baukosten in CHF (SIA 416)
17’790’000 chf TTC
Geschossfläche in m² (SIA 416)
5'034 m2
Planung
2016 → 2020
Fertigstellung
2020 → 2023
Inbetriebnahme
2023
Projektbeteiligte
Bauherrschaft
Fondation Universitaire pour le Logement des Étudiants (FULE)
Architektur
HLKS-Planung
Landschaftsarchitektur