Nouvelle école de la Commune mixte de Plateau de Diesse à Prêles/BE

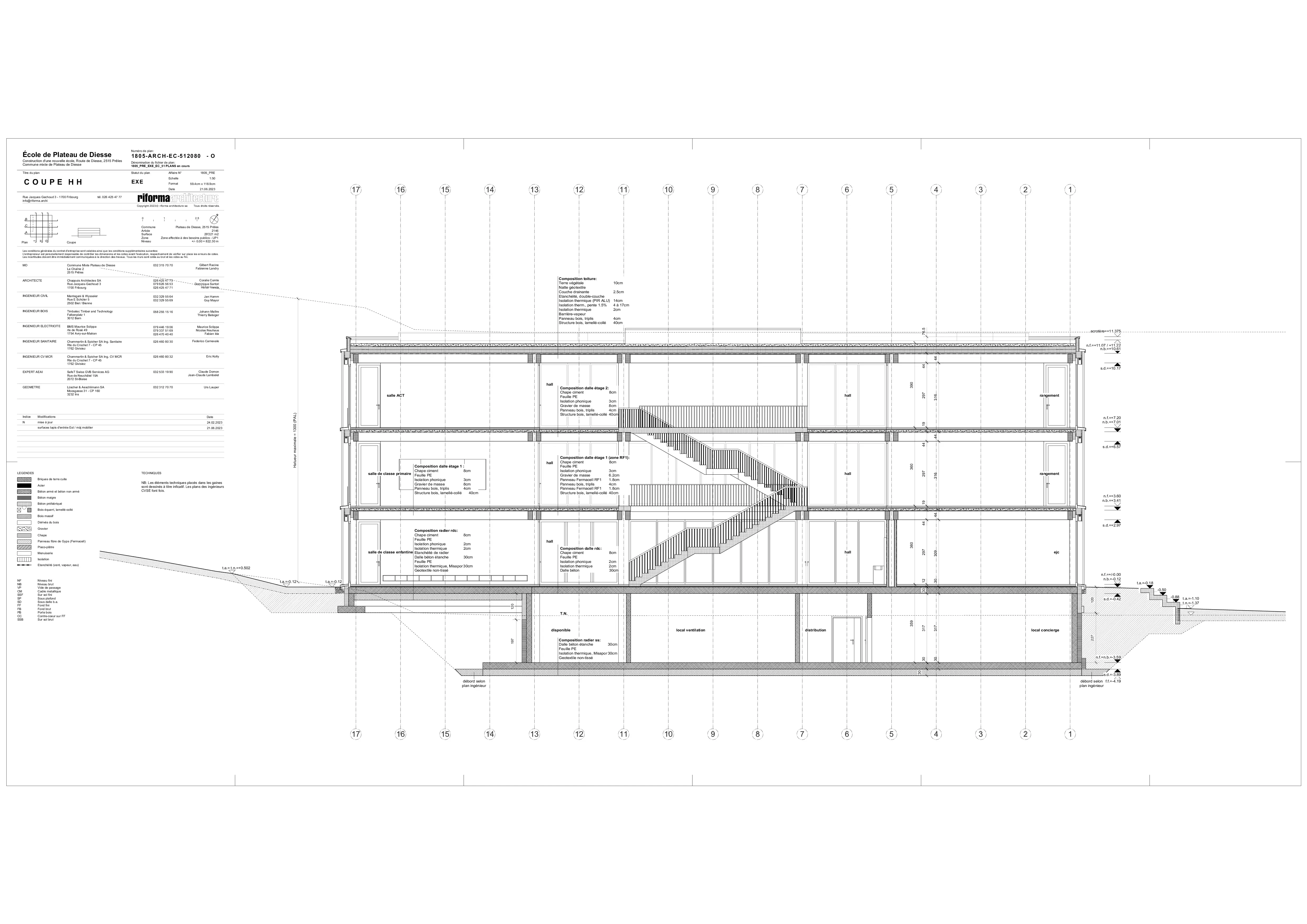
L'école est le premier bâtiment public construit par la nouvelle Commune de Plateau de Diesse dont il est le symbole. Le parti d’implantation place l’école dans la couronne bâtie de Prêles, au plus près du centre du village. L’expression architecturale se réfère, à celle des trois premières « maisons d’école » construites simultanément en 1850 dans les trois villages réunis, et dont elle reprend l’iconographie. Une école 100% en bois local, des forêts du Plateau (label Bois Suisse). L’école est posée sur une plate-forme qui renforce le caractère public du bâtiment, également une réponse à la zone inondable du vallon. Le concept modulaire découlant du mode constructif impose une expression de simplicité silencieuse et assure une grande souplesse d’utilisation, d’évolution et de réemploi. Les matériaux sont choisis pour leur caractéristiques les plus efficaces pour l’emploi, vitrages sollicités en aluminium, volées d’escaliers en béton en raison des résistances au feu requises.






















Texte Davos Kriterien (Selbstevaluation)
Gouvernanz
« Il faut tout un Plateau pour élever un enfant ». Avec ce slogan, c’est toute la Communauté du Plateau de Diesse qui a participé à ce projet. Ce premier bâtiment public de la nouvelle Commune est le symbole d'une confiance en l’avenir de cette région de montagne, un engagement envers les générations futures. Concours certifié SIA 142. Le développement du projet a fait l’objet de workshops thématiques, séances d’informations publiques et des votes en Assemblée générale et scrutin populaire
Funktionalität
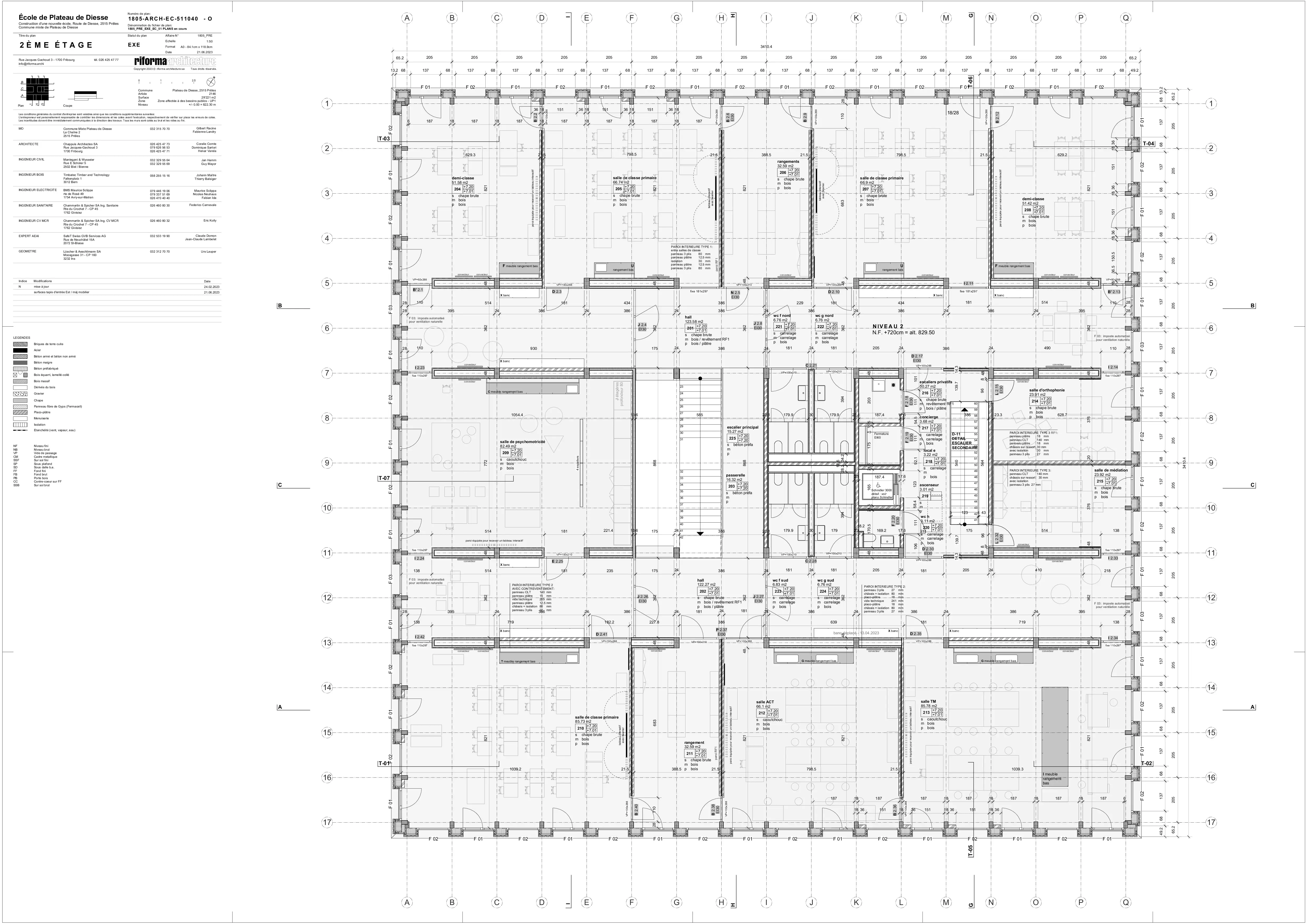
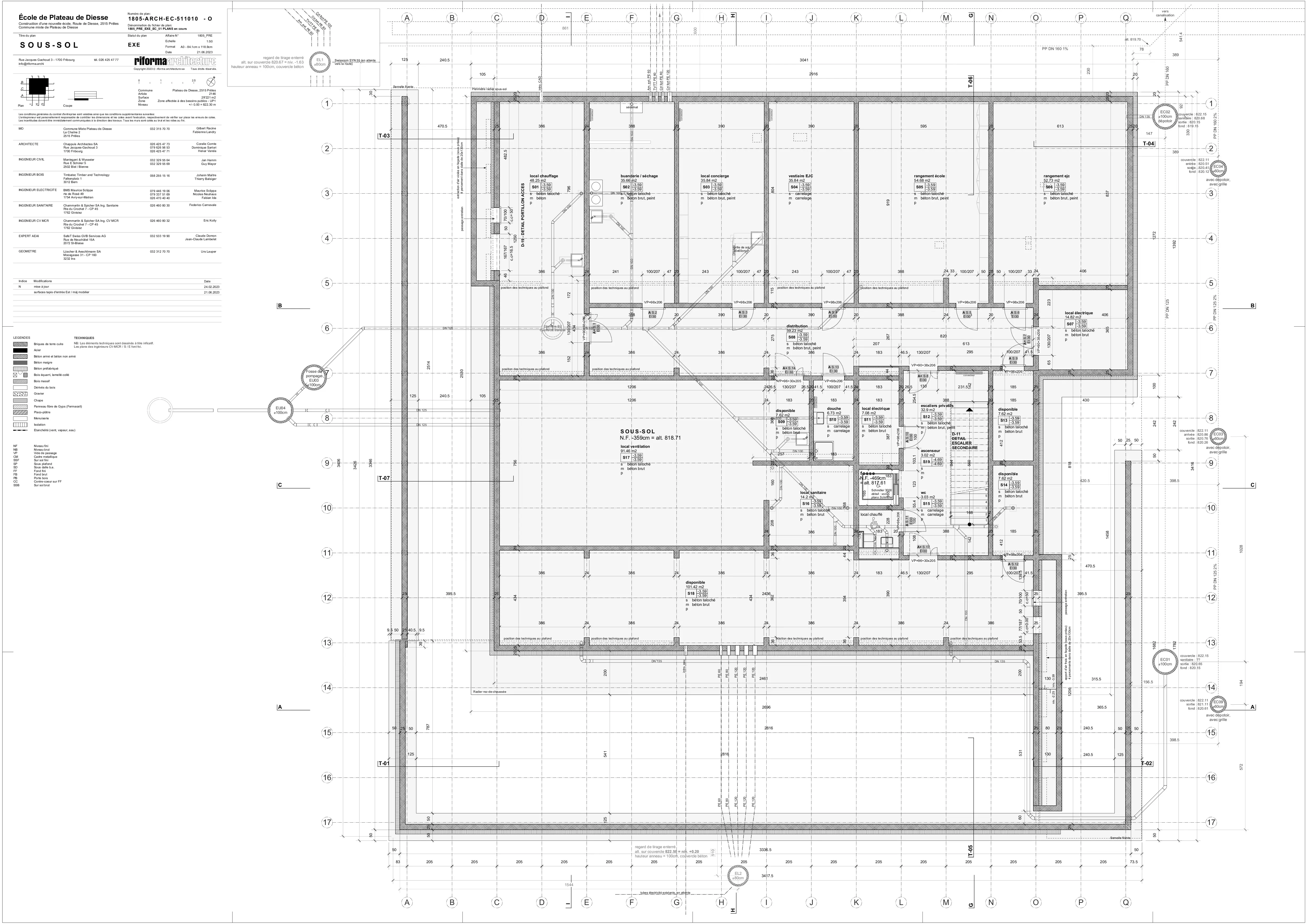
L’organisation modulaire est garante de l’unité de la construction et de la forme, elle est pérenne par son approche ouverte et souple lors du développement, de l’exploitation et du réemploi de ses composantes. Les espaces sont adaptés aux nouvelles pédagogies, ils offrent un continuum de lieu de différentes échelles, permettant de varier les activités, en groupe ou individuelles. La transparence est un principe fondamental de l’institution, elle donne un sentiment d’ouverture et d’accessibilité
Umwelt
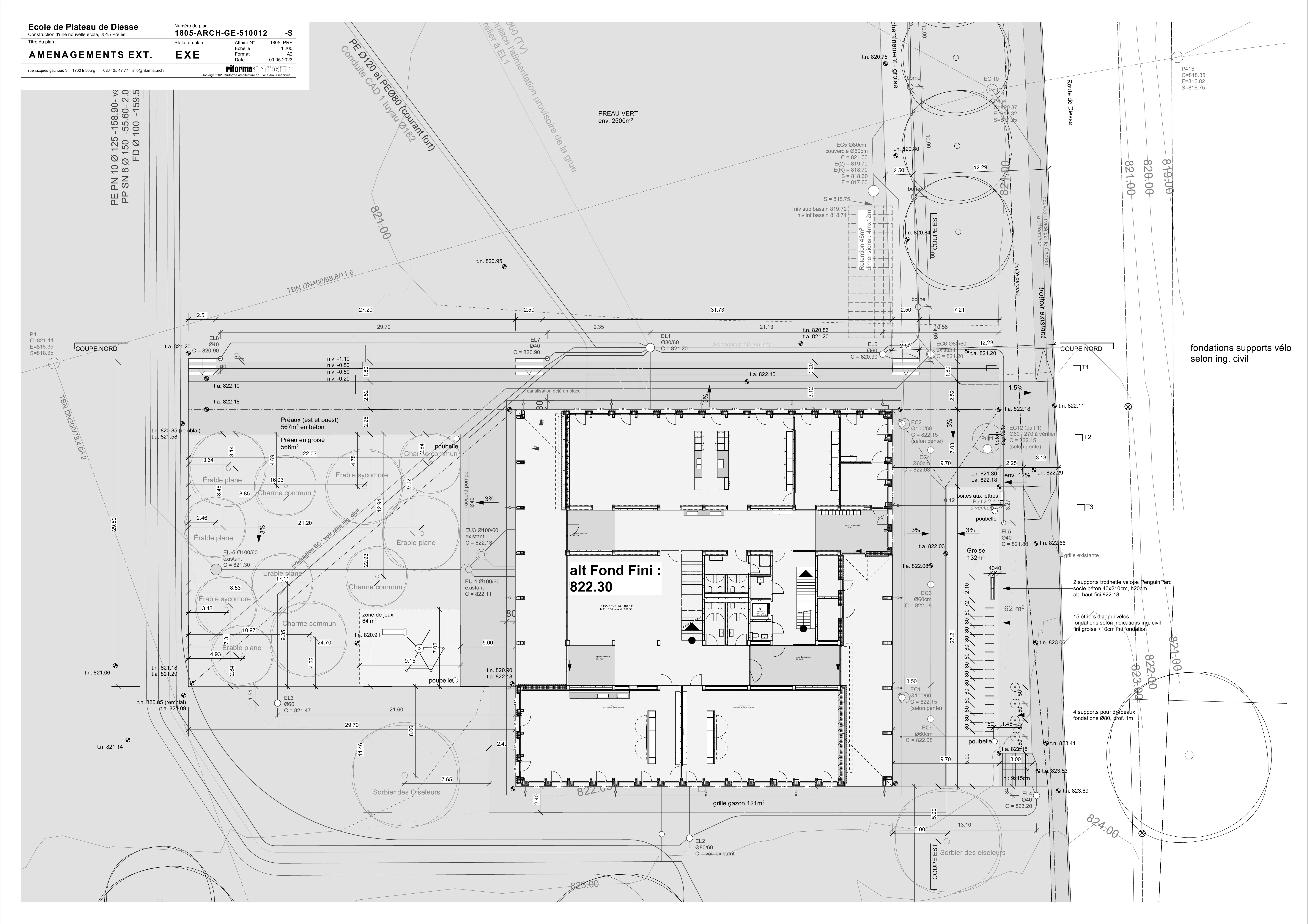
Le bâtiment hors sol est construit 100% en bois, matériau renouvelable qui absorbe le CO2 de l’atmosphère lors de la croissance. La nouvelle école stocke à long terme 1’159 tonnes de CO2. Le bois provient de forêts du Plateau de Diesse gérées de manière responsable et durable. Le projet a réutilisé 100% des matériaux d’excavation sur place pour répondre à la zone inondable, ce qui crée un gradin sur l'aire de jeu. Une forme compacte pour limiter l’impact au sol et dans son contexte. MoPEC 2014
Wirtschaft
L’école est réalisée en bois prélevé dans les forêts de la Commune. Le bois connecte organiquement la nouvelle école avec son territoire, également un engagement en faveur l’économie locale, les circuits courts, le savoir local des métiers du bois. Un choix permettant de valoriser les ressources présentes sur son territoire et de maîtriser les coûts de fourniture de matériaux. Suivi de traçabilité effectué par des mandataires indépendants. Une forme compacte soutenable économiquement.
Vielfalt
L’accessibilité des lieux publics, est une étape essentielle vers une société plus inclusive, ou chacun a la possibilité de participer à la vie communautaire et éducative. L’école est ici un lieu de vie, elle comprend de multiples affectations, école à la journée continue, pédagogies spécialisées, salle de musique ouverte aux sociétés locales, etc. La transparence est un principe fondamental de l’institution, transposée au bâtiment, elle donne un sentiment d’ouverture et d’accessibilité
Kontext
Le concept architectural trouve son origine dans les trois premières « maison d’école » du plateau construites en 1850 dont il reprend l’iconographie. En se référant au patrimoine bâti Diesse, Prêles et Lamboing, l’école contribue à la cohésion de la nouvelle Commune. Le choix du bois connecte organiquement la nouvelle école avec le territoire du Plateau. Le parti d’implantation prend en compte la topographie naturelle et inflexion du vallon, en adossant l’école au périmètre bâti du village
Genius Loci
La nouvelle école cherche des liens avec l’esprit du lieu du Plateau en se référant au patrimoine bâti scolaire, mais aussi avec l’histoire du site naturel, un vallon inondable formant une patinoire naturelle en hiver. Le vallon partiellement comblé, est resté une place de loisirs, du match de foot informel entre amis de tous âges. La position de l'école préserve ce lieu de rencontre et offre un gradin sur cette scène publique avec peut-être par grand froid une patinoire naturelle retrouvée
Schönheit
Le cadre naturel de l’école est rare, une immersion qui sensibilisera les élèves à l’environnement, à la biodiversité et à la durabilité. En réponse à cet environnement éducatif unique, l’expression modulaire et sérielle de l’école propose une forme de silence. L’accès aux matériaux dans leur état naturel ou en devenir, stimulera l’élève à une approche multisensorielle de leur environnement. Le bois reconnectera l’école aux forêts du Plateau. Une expression constructive, simple, essentielle
Eigenschaften
Ort
Prêles/BE
Baukategorie (SIA 102)
Unterricht, Bildung und Forschung
Art der Aufgabe
Neubau
Art des Verfahrens
Wettbewerb
Beschaffungsform
Selektives Verfahren
Baukosten in CHF (SIA 416)
14'300'000
Geschossfläche in m² (SIA 416)
3'215
Planung
2019 → 2021
Fertigstellung
2021 → 2023
Inbetriebnahme
2023
Projektbeteiligte
Architektur
Bauingenieurwesen
Bauingenieurwesen
HLKS-Planung
HLKS-Planung