Théâtre de la Nouvelle Comédie de Genève

La Nouvelle Comédie, c'est plus qu'un théâtre : c'est non seulement un lieu de représentation théâtrale, avec ses deux salles, mais aussi un lieu de création, avec ses grands ateliers de construction. Ce sont eux qui font de la Nouvelle Comédie un véritable centre de création théâtrale, réunissant sous un même toit tous les métiers du théâtre.
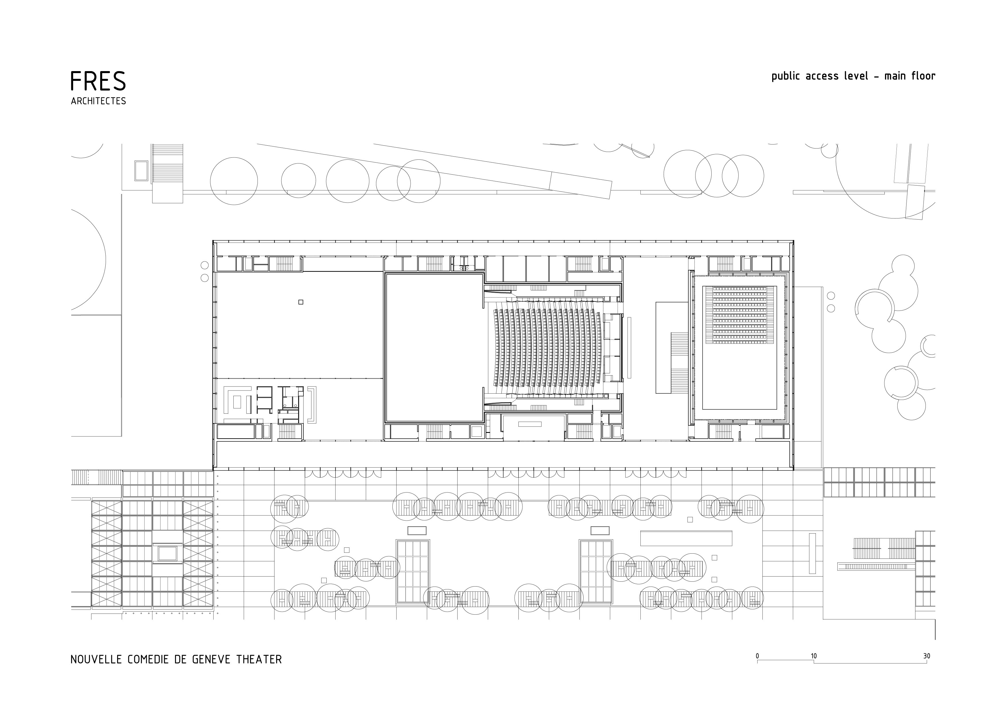
Le caractère « d'usine à spectacles » a été déterminant pour la conception du projet, qui devait être à la fois un équipement hyper-fonctionnel, et à la fois un bâtiment singulier avec une identité propre.
Le projet dispose les salles de spectacle au cœur du bâtiment, avec une articulation des programmes qui génère en coupe un profil singulier, une Skyline, donnant ainsi son identité au bâtiment.
Le projet pour le théâtre de la Nouvelle Comédie de Genève, c'est aussi et surtout une idée forte, un projet culturel, une vision de société. C'est même, osons le terme, un manifeste.
Le caractère « d'usine à spectacles » a été déterminant pour la conception du projet, qui devait être à la fois un équipement hyper-fonctionnel, et à la fois un bâtiment singulier avec une identité propre.
Le projet dispose les salles de spectacle au cœur du bâtiment, avec une articulation des programmes qui génère en coupe un profil singulier, une Skyline, donnant ainsi son identité au bâtiment.
Le projet pour le théâtre de la Nouvelle Comédie de Genève, c'est aussi et surtout une idée forte, un projet culturel, une vision de société. C'est même, osons le terme, un manifeste.
























Texte Davos Kriterien (Selbstevaluation)
Gouvernanz
Le théâtre de la Nouvelle Comédie est le fruit d'un processus participatif inédit et exemplaire.
L'idée du projet est née de la volonté de l'Association pour une Nouvelle Comédie, composée de professionnels du monde du théâtre, qui alla porter auprès de la Ville de Genève la construction d'un nouveau théâtre. La Ville lança en 2009 un concours ouvert, remporté par FRES, qui développera ensuite le projet dans un processus ouvert, collaboratif, impliquant toutes les parties prenantes du projet.
L'idée du projet est née de la volonté de l'Association pour une Nouvelle Comédie, composée de professionnels du monde du théâtre, qui alla porter auprès de la Ville de Genève la construction d'un nouveau théâtre. La Ville lança en 2009 un concours ouvert, remporté par FRES, qui développera ensuite le projet dans un processus ouvert, collaboratif, impliquant toutes les parties prenantes du projet.
Funktionalität
La Nouvelle Comédie est conçue comme un équipement hyper-fonctionnel. Le projet dispose de deux salles de spectacles complémentaires au cœur du bâtiment, avec une articulation des programmes qui génère en coupe un profil singulier, une Skyline, donnant ainsi son identité au bâtiment.
Les circulations des populations sont organisées avec une grande rationalité de manière à privilégier autant la fonctionnalité du bâtiment que la qualité des espaces pour le confort des utilisateurs.
Les circulations des populations sont organisées avec une grande rationalité de manière à privilégier autant la fonctionnalité du bâtiment que la qualité des espaces pour le confort des utilisateurs.
Umwelt
La Nouvelle Comédie, longée par une voie verte et une voie ferrée, privilégie les modes de transport doux.
Une structure en béton a permis de réponde aux contraintes structurelles et acoustiques propres à un théatre, comme par exemple la réalisation de grands volumes, aux points porteurs réduits, pouvant accueillir des usages divers permettant une grande flexibilité et évolutivité du bâtiment.
Des matériaux bruts, nobles et perennes assurent la durabilité de l'équipement à long terme.
Une structure en béton a permis de réponde aux contraintes structurelles et acoustiques propres à un théatre, comme par exemple la réalisation de grands volumes, aux points porteurs réduits, pouvant accueillir des usages divers permettant une grande flexibilité et évolutivité du bâtiment.
Des matériaux bruts, nobles et perennes assurent la durabilité de l'équipement à long terme.
Wirtschaft
A l’échelle du quartier, la Nouvelle Comédie est l’équipement majeur qui fait vivre l’esplanade publique, colonne vertébrale du projet urbain. C'est un équipement ouvert, qui crée une continuité entre la vie du théâtre et celle de la Ville. Le hall est un espace généreux, vivant, accueillant et lumineux qui donne accès aux usages publics situés au niveau de l’espace public : café-restaurant, billetterie, foyer…
Vielfalt
La Nouvelle Comédie est un équipement ouvert à tous, un lieu de vie et de création, avec des espaces accueillants et flexibles. Le hall et le foyer, accessibles la journée, expriment l’ouverture du théâtre sur la ville et permettent d'imaginer une grande diversité de manifestations pour tous les publics, ce qui a été récompensé par le label Culture Inclusive. Ce lieu de création et de production est aussi un lieu de cohésion sociale entre tous les utilisateurs.
Kontext
Le bâtiment est implanté sur la nouvelle gare du Léman Express des Eaux-Vives, dans un futur quartier mixte composé de logements, de bureaux, de commerces, d'équipements et dont le théâtre est l'équipement culturel majeur non seulement du nouveau quartier, mais aussi à l'échelle de la ville et de la Suisse romande. Grâce à sa forme crénelée, il exprime à la fois une forte identité, et à la fois il établit un dialogue d'échelles harmonieux avec les bâtiments existants.
Genius Loci
La spécificité du projet est de rassembler dans un même lieu les espaces de représentation d’un théâtre et les espaces de production. C'est l'association de ces deux programmes qui a présidé à l'architecture du projet.
La journée, c'est un lieu de travail productif, une 'usine à spectacles' qui réunit tous les métiers de la scène. Le soir, les façades du bâtiment reçoivent un éclairage rouge qui met en scène le théâtre dans la ville, et qui invite le public au spectacle.
La journée, c'est un lieu de travail productif, une 'usine à spectacles' qui réunit tous les métiers de la scène. Le soir, les façades du bâtiment reçoivent un éclairage rouge qui met en scène le théâtre dans la ville, et qui invite le public au spectacle.
Schönheit
La matérialité et la spatialité du bâtiment expriment le caractère productif du lieu.
Chaque espace permet une transition douce entre la vie de la rue et l'intimité d'une salle de théâtre. Au cœur du bâtiment, chacune des salles, conçue comme un espace poétique, porte une identité spécifique et crée une atmosphère unique, accueillante, qui intègre l'acoustique et la lumière offrant une expérience sensorielle enveloppante, et qui prépare le spectateur à la magie du spectacle.
Chaque espace permet une transition douce entre la vie de la rue et l'intimité d'une salle de théâtre. Au cœur du bâtiment, chacune des salles, conçue comme un espace poétique, porte une identité spécifique et crée une atmosphère unique, accueillante, qui intègre l'acoustique et la lumière offrant une expérience sensorielle enveloppante, et qui prépare le spectateur à la magie du spectacle.
Eigenschaften
Ort
Esplanade Alice-Bailly 1, 1207 Genève
Baukategorie (SIA 102)
Kultur und Geselligkeit
Art der Aufgabe
Neubau
Art des Verfahrens
Wettbewerb
Beschaffungsform
Offenes Verfahren
Baukosten in CHF (SIA 416)
65 M. CHF HT
Geschossfläche in m² (SIA 416)
16 060
Planung
2010 → 2017
Fertigstellung
2018 → 2021
Inbetriebnahme
2021
Projektbeteiligte
Bauherrschaft
Architektur
Bauingenieurwesen
Andere
Akustikplanung
Fassadenplanung
Baubiologie
Bauphysik
Elektroplanung
Baubiologie
Andere
Andere
Pitteloud - cuisiniste
Lichtplanung
Kosten- und Terminplanung
Kosten- und Terminplanung
Baumanagement
Projektleitung
Signaletik