GRANGE DE DORIGNY

Lieu emblématique du campus de l’Université de Lausanne, le théâtre de La Grange fait peau neuve. Deux interventions simultanées sur deux sujets différents donnent au lieu plus de flexibilité ainsi qu’une clarification des espaces.
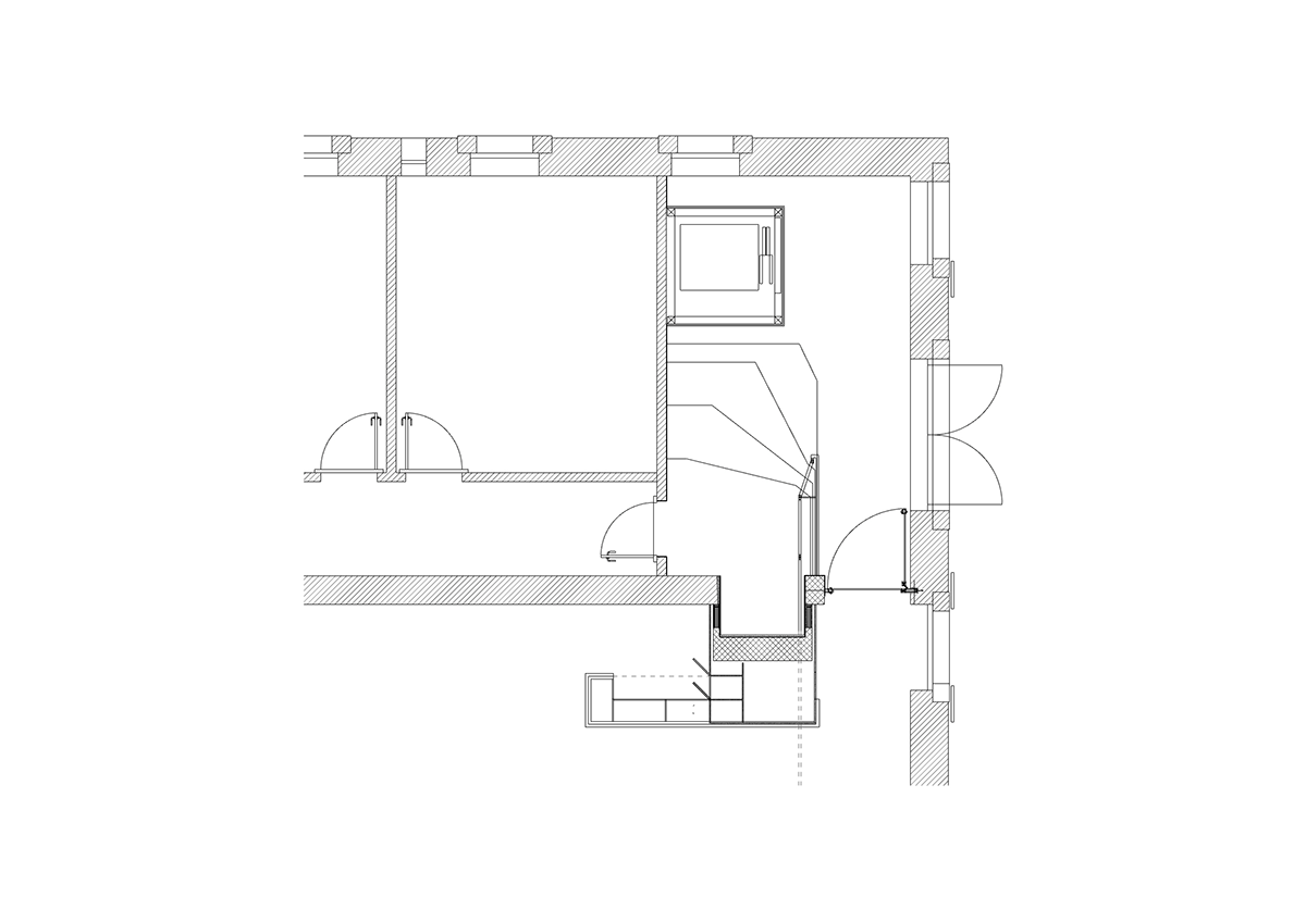
La première intervention concerne la modification des accès dans la salle de théâtre. Le nouveau guichet vient faire irruption dans le foyer. Le fort volume blanc fait deviner le nouvel escalier, qui devient l’élément central de la circulation. Les spectateur-trice-s sont amenés à entrer dans un tout nouvel espace avec une identité forte. La main courante accompagne dès les premiers pas la montée dans la salle. Le nouvel ascenseur rends plus aisé la circulation plus inclusive et ainsi régler la problématique du contournement de la grange par l’extérieur pour les personnes à mobilité réduite, comme ça l’était autrefois.
La première intervention concerne la modification des accès dans la salle de théâtre. Le nouveau guichet vient faire irruption dans le foyer. Le fort volume blanc fait deviner le nouvel escalier, qui devient l’élément central de la circulation. Les spectateur-trice-s sont amenés à entrer dans un tout nouvel espace avec une identité forte. La main courante accompagne dès les premiers pas la montée dans la salle. Le nouvel ascenseur rends plus aisé la circulation plus inclusive et ainsi régler la problématique du contournement de la grange par l’extérieur pour les personnes à mobilité réduite, comme ça l’était autrefois.




















Texte Davos Kriterien (Selbstevaluation)
Gouvernanz
Le projet a engagé diverses expertises et à suivi une procédure transparente et collaborative à divers étapes en travaillant avec l’Université de Lausanne, le comité de la Grange de Dorigny, les équipes de productions, les artistes, des corps de métiers spécialisés et locaux. Chaque décision était le fruit de débats constructifs permettant d’aboutir à des solutions optimales pour tous les parties prenantes.
Funktionalität
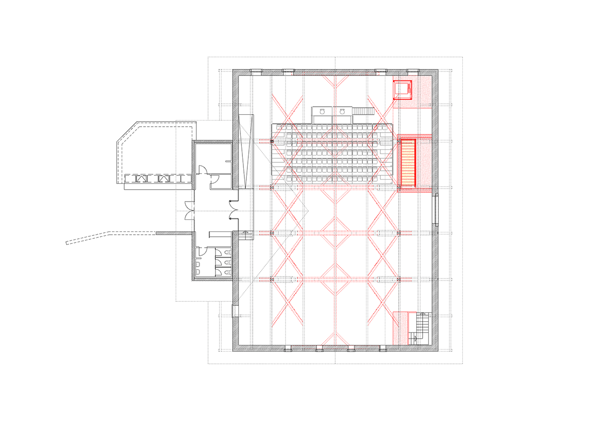
Développée en plusieurs parties, la première résout la problématique d’accessibilité à la salle principale, la deuxième intervention concerne la modification complète de la charpente. Elle est rehaussée d’environ 70cm pour permettre le passage d’une toute nouvelle installation scénographique ainsi qu’un pont de visite répondant au besoin de productions artistiques contemporaines et futures.
Umwelt
Catégorisé en note 3, la grange de Dorigny est un bâtiment d’importance culturelle sur le site de l’Université de Lausanne et préserve sa valeur historique tout en s'équipant pour l’avenir. L’intervention prenant place exclusivement à l’intérieur, une adaptation soignée est proposée, entrelacée dans les éléments protégés.
Wirtschaft
Le résultat du projet est un espace qui permet de stimuler le tissu économique et culturel - par conséquent le site de La Grange devient un nœud économique, culturel et social.
Vielfalt
Le nouveau lieu devient un espace d’expérimentation qui s’appuie sur les compétences et les opportunités proposés par le site universitaire de l’UNIL et par la proximité à l’EPFL. Fonctionnellement, une nouvelle circulation verticale permet un accès plus aisé à la salle principale, pour tout type d’utilisateur-trices
Kontext
Intervenant en tant qu’interface entre les arts et les sciences, le nouvel espace est conçu afin d'accueillir un programme plus adapté à sa situation géographique et culturelle. Des comités scientifiques, regroupant des personnalités issues des milieux artistiques et scientifiques, peuvent désormais être constitués afin de définir le cadre théorique et pratique, et accompagner les participants dans leur recherche.
Genius Loci
Par le développement de ce projet, La Grange de Dorigny est devenue “La Grange”, un centre de recherches et d’expérimentations. Par cette mutation, elle incarne la possibilité d’un territoire : celui d’un espace libre et ouvert, où chercheurs et artistes collaborent et imaginent ensemble.
Schönheit
L’espace est développé autour d’un language architectural qui souligne la nouvelle direction de l’établissement. L’escalier devient l’élément central de la circulation. Les spectateur-trice-s sont amenés à entrer dans espace avec une identité forte et dont les détails, tel que la main courante, les accompagne et les engage dès les premiers pas. L’accès à la salle devient une séquence, de l’achat du ticket à représentation.
Eigenschaften
Ort
Lausanne
Baukategorie (SIA 102)
Kultur und Geselligkeit
Art der Aufgabe
Umbau
Art des Verfahrens
Direktauftrag
Baukosten in CHF (SIA 416)
550'000
Geschossfläche in m² (SIA 416)
200
Planung
2020 → 2021
Fertigstellung
2021 → 2022
Inbetriebnahme
2022
Projektbeteiligte