Holzbüxli

Holzbuxli zeigt, wie eine nachhaltige Renovierung kosteneffizient, zeitsparend und stilvoll sein kann, indem Naturliche Elemente sprechen lässt und sich zurückhält. Eine Einfamilienhaus-Umbau mit Dachaufstockung. Diese intensive Renovierung wurde nach dem Prinzip eines Schachtelmänchens konzipiert, die zwei Häuser unter einer Hülle verbirgt. Die Bauvorschriften stellten Herausforderungen dar und eröffneten verschiedene dynamische und flexible Lösungen, die zu einer Sequenz weitläufiger, vielfältiger Räume führten.















Texte Davos Kriterien (Selbstevaluation)
Gouvernanz
Dieses kleine, aber anspruchsvolle Projekt wurde von uns als Architekten mit viel Enthusiasmus entworfen. Wir waren dabei auch für die gesamte Bauleitung verantwortlich. In engem Kontakt mit hochkwalitifzieren und lokalen Fachplaner, sowie Baufirmen konnten wir den Entwurf optimieren und innovative Wege beschreiten. Im Hinblick auf eine nachhaltige Bauweise war dies von grundlegender Bedeutung.
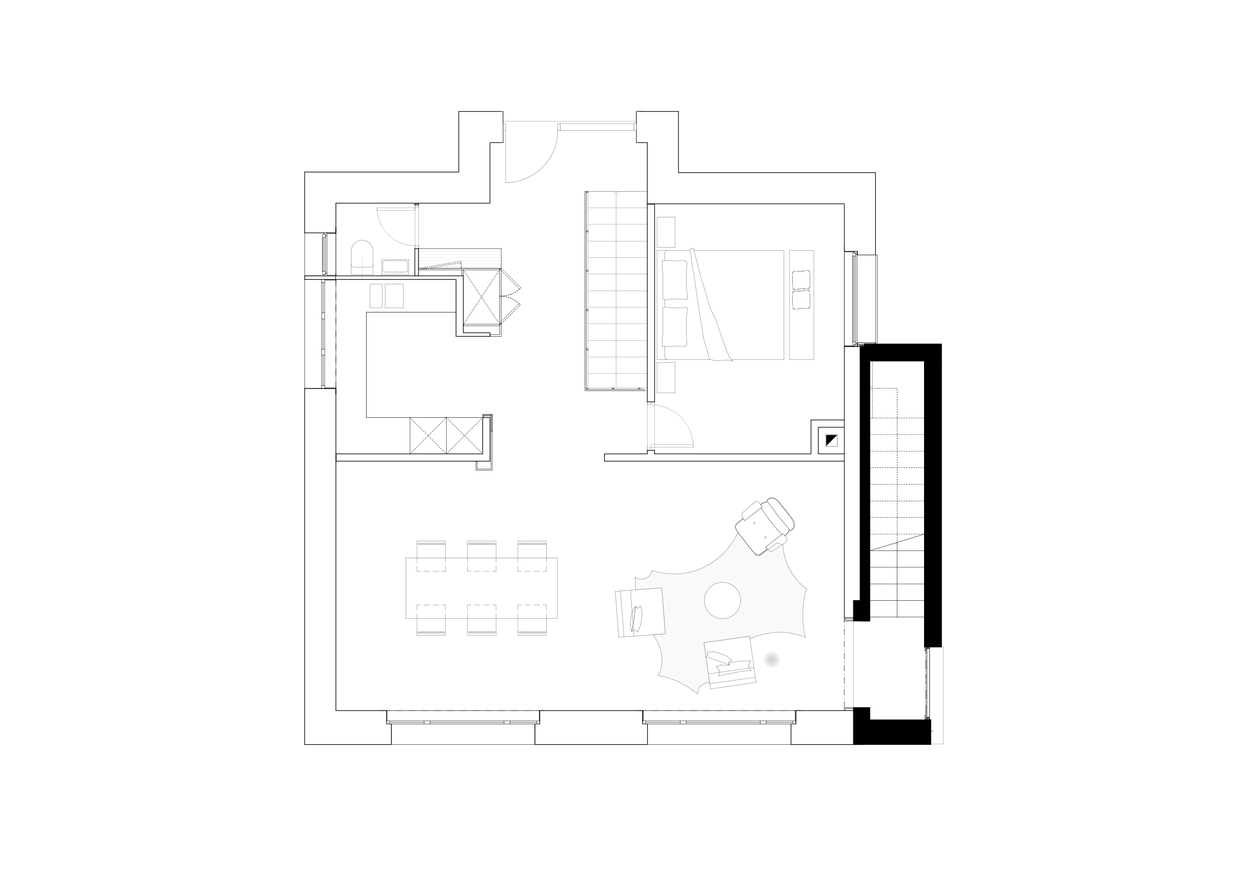
Funktionalität
Die Aufstockung sollte ein neues Schlafzimmer generieren. Durch die flexible und grosszügige Gestaltung erhielt das Haus eine neue Dynamik. Anstelle einer Schlafebene wurde das DG zu einem Wohn- und Arbeitsraum mit einer grosszugigen Terrasse. Das Dressing wurde zum Office und das Master suite eine Lounge. Aus dem Wunsch nach einer einseitigen Umnutzung entstand eine Vielzahl von neuen Funktionen.
Umwelt
Während des gesamten Bauprozesses wurde auf die Vielseitigkeit der Konstruktion geachtet, indem natürliches Holz als sichtbares Baumaterial verwendet wurde. Unterschiedliche, nicht benötigte Materialien konnten so weitgehend vermieden werden, als Statement für nachhaltiges und edles Bauen. Diverse Aussenräume und die dicht bepflanzte Terrasse sorgen für einen direkten Kontakt mit der Natur.
Wirtschaft
Das Gebäude ist eines von vier identischen Wohnhäusern, die in den 70er Jahren errichtet wurden. Die Verdichtung und das Wohnkonzept auf drei Ebenen generieren einen hohen Mehrwert auf kleiner Fläche. Das ehemals schlichte Haus wurde sowohl optisch und funktional bedeutungsvoll und komplett aufgewertet. Hierzu wurde grosser Wert auf Kontraste, aber auch neue Aussichte und Freiräume gelegt.
Vielfalt
Eine Vielfalt an subtilen Ausdrucksformen, durch Bauvorschriften entstanden, bildet die Basis für die Transformation. Das Prinzip von zwei Häusern in einem- ein altes und ein neues-das im Inneren erkennbar wird, setzt sich in Kontrast zu der nach aussen zurückhaltender Struktur. Dank seiner Form, Materialisierung und Funktionalität wird dieses Haus als kontrastreich und vielfältig dynamisch bewohnt.
Kontext
Dieses Haus integriert sich nahtlos in seine Umgebung. Mit seinem durchdachten und gezielten Charakter gibt es einen Zwinkern an seine drei anderen Brüder, die neben und hinter ihm stehen.
Genius Loci
Birmensdorf ist ein Dorf, das seit einigen Jahren viele neue Einwohner bekommen hat. Es bildet eine schöne Alternative für Jung und Alt, die in der Nähe einer Großstadt in einer natürlichen Umgebung leben wollen. Dieses Haus passt architektonisch zu dieser neuen Identität: kontemporärer Lebensstil auf dem Lande, in der Nähe der Stadt.
Schönheit
Aufgrund der konzeptuellen Vielschichtigkeit, die in dieser Realisierung in Bezug auf die Architektur, die Innenräume und die Beziehung zur Umgebung und den Bewohnern zu finden ist, überlassen wir Ihnen das Urteil
Eigenschaften
Ort
Birmensdorf
Baukategorie (SIA 102)
Wohnen
Art der Aufgabe
Umbau
Art des Verfahrens
Direktauftrag
Baukosten in CHF (SIA 416)
486'000
Geschossfläche in m² (SIA 416)
129
Planung
2019 → 2020
Fertigstellung
2020 → 2021
Inbetriebnahme
2021
Projektbeteiligte