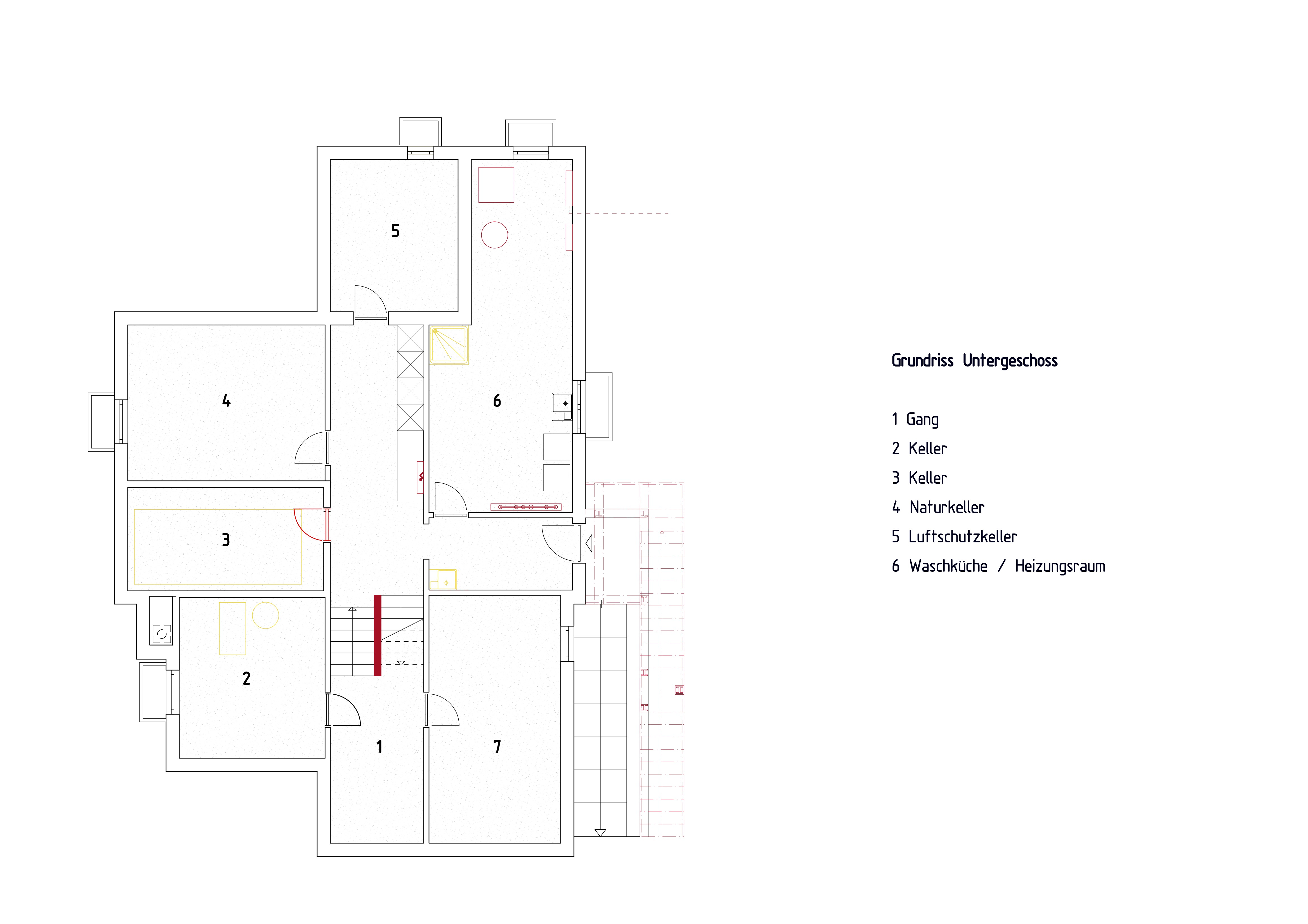
Umbau EFH Einsiedlerstrasse 312, 8810 Horgen

Eingebettet zwischen Bäumen und Hecken in der Gemeinde Horgen am Zürichsee ermöglicht das Einfamilienhaus aus den 1970er-Jahren eine Umgebung mit viel Privatsphäre und Erholungsraum: Mit rund 200 Quadratmetern ist das Haus grosszügig angelegt. Das Projekt für Raumtakt besteht nun darin, dass Einfamilienhaus in ein Zweifamilienhaus umzubauen. Dabei stehen die Bedürfnisse der Familie klar im Vordergrund: Früher war es ein Zuhause für zwei Geschwister, die dort aufgewachsen sind, heute sollen sie nun nach modernsten Standards unter einem Dach zusammenwohnen, so dass aber jeder auch seine eigenen Räume zur Verfügung hat.
Das Haus nun umzubauen, ergab sich nicht nur aus den gemeinsamen Erinnerungen und den emotionalen Wert, sondern auch durch den Anspruch an Nachhaltigkeit. Raumtakt erstellte dazu ein umfassendes Konzept: Dazu kamen neue Fenster, der Verzicht auf fossile Brennstoffe, eine umweltfreundlichere Dämmung des Dachs sowie weitere Vorbereitungsarbeiten für künftige Interventionen
Das Haus nun umzubauen, ergab sich nicht nur aus den gemeinsamen Erinnerungen und den emotionalen Wert, sondern auch durch den Anspruch an Nachhaltigkeit. Raumtakt erstellte dazu ein umfassendes Konzept: Dazu kamen neue Fenster, der Verzicht auf fossile Brennstoffe, eine umweltfreundlichere Dämmung des Dachs sowie weitere Vorbereitungsarbeiten für künftige Interventionen



















Textes Critères de Davos
Gouvernance
In unserem Wettbewerbsbeitrag legen wir besonderen Wert auf die harmonische Integration des Gebäudes in die umgebende Landschaft. Die klare Linienführung und die funktionale Gestaltung des Gebäudes stehen im Einklang mit den Bedürfnissen der Nutzer und schaffen eine zeitgemässe Architektur. Wir haben ausserdem besonderes Augenmerk auf die Energieeffizienz und Nachhaltigkeit gelegt, indem wir moderne Technologien zur Reduzierung des Energieverbrauchs und zur Schonung der Umwelt integriert haben.
Fonctionnalité
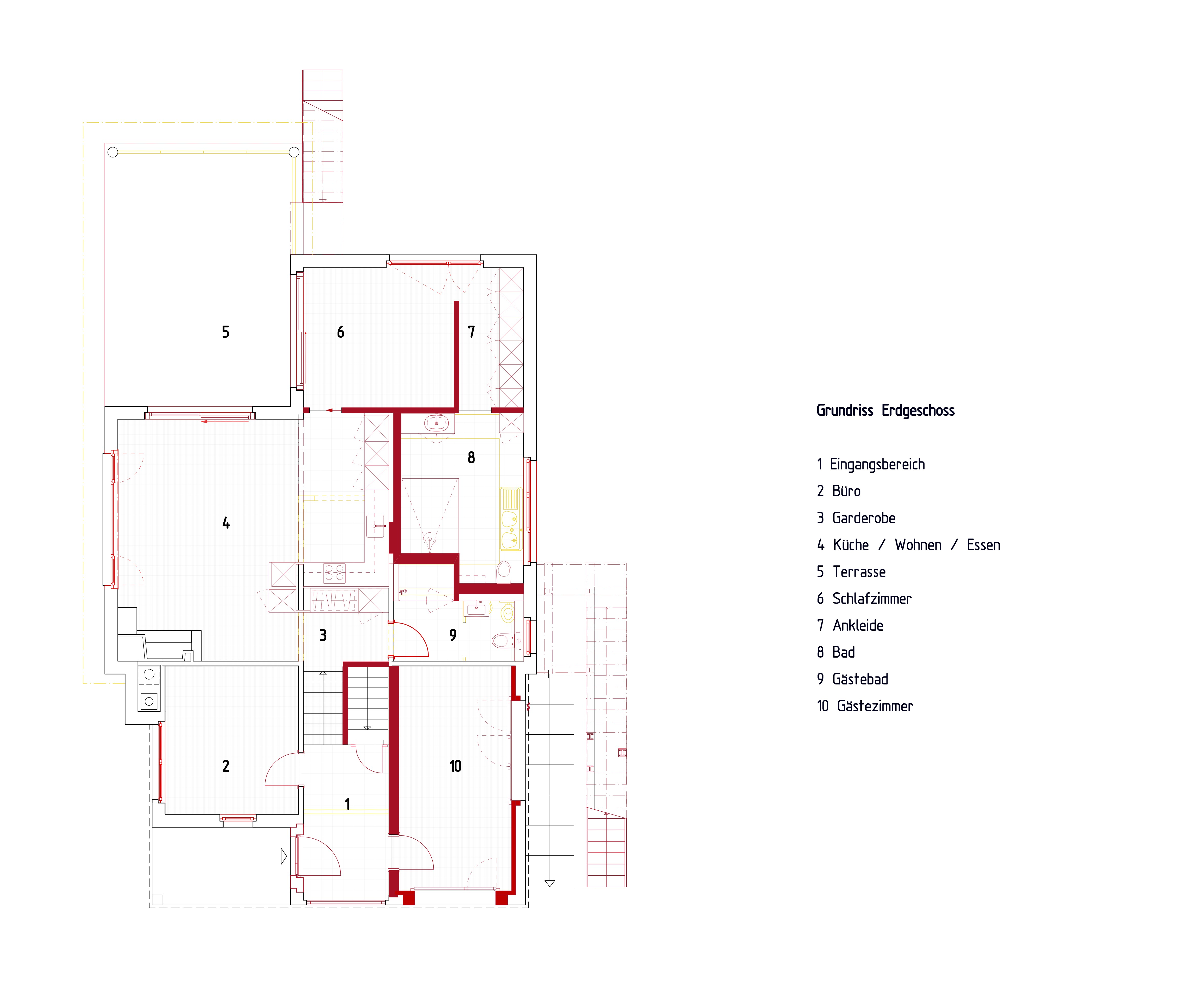
Das grosszügige ehemalige Einfamilienhaus wurde in ein Zweifamilienhaus umgewandelt. Es wurden zwei zeitgemässe und zukunftsfähige Wohnungen realisiert in denen der Platz optimal genutzt wird. Dabei wird der Platzbedarf den heutigen Anforderungen und Umständen der Bewohnerinnen erfüllt. Dazu wird der individuelle Charakter durch die Innenarchitektur der beiden Wohnungen sichtbar – und immer auch für künftige Generationen vorausgedacht.
Environnement
Der Einbezug der neusten Standards zur Energieeffizienz und Nachhaltigkeit waren besonders relevant: Eine moderne Luftwärmepumpe dient als primäre Energiequelle, die verbesserte Dämmung des Dachs und die neuen Fenster reduzieren den Energieverbrauch des Gebäudes erheblich. Die Umgestaltung berücksichtigte auch die Möglichkeit, eine Photovoltaikanlage zu einem späteren Zeitpunkt zu installieren.
Eine harmonische Verbindung zwischen Architektur und der pflanzenreichen Umgebung wurde geschaffen.
Eine harmonische Verbindung zwischen Architektur und der pflanzenreichen Umgebung wurde geschaffen.
Économie
Unser Architekturentwurf zeichnet sich durch eine klare Linienführung und eine funktionale Gestaltung aus. Wir haben besonderen Wert darauf gelegt, die Bedürfnisse der Nutzer und die Anpassung an die Umgebung zu berücksichtigen. Die Nutzung hochwertiger und langlebiger Baumaterialien sowie moderne Bautechniken gewährleisten eine nachhaltige und effiziente Bauweise.
Diversité
Unser Architekturkonzept betont Funktionalität, Nachhaltigkeit und soziale Integration. Ziel ist die Umwandlung eines Einfamilienhauses aus den 1970er-Jahren in ein Zweifamilienhaus, das den Bedürfnissen der Familie entspricht. Durch gezielte Massnahmen wie den Einsatz einer Luftwärmepumpe und die Verbesserung der Gebäudedämmung streben wir Nachhaltigkeit und Energieeffizienz an. Unsere Gestaltung integriert das Gebäude harmonisch in die natürliche Umgebung.
Contexte
Unser architektonisches Konzept für die Umgestaltung des Einfamilienhauses in Horgen am Zürichsee basiert auf einer sorgfältigen Integration in die natürliche Umgebung. Dabei berücksichtigen wir den baukulturellen Kontext und zeitgemässe Gestaltungsprinzipien.
Unsere Planung legt einen starken Fokus auf Nachhaltigkeit und Energieeffizienz. Dies spiegelt sich in der Wahl einer Luftwärmepumpe, einer verbesserten Dämmung und der Vorbereitung für eine zukünftige Photovoltaikanlage wider.
Unsere Planung legt einen starken Fokus auf Nachhaltigkeit und Energieeffizienz. Dies spiegelt sich in der Wahl einer Luftwärmepumpe, einer verbesserten Dämmung und der Vorbereitung für eine zukünftige Photovoltaikanlage wider.
Esprit du lieu
Die Bedürfnisse der Familie standen klar im Vordergrund: Früher war es ein Zuhause für zwei Geschwister, die dort aufgewachsen sind, heute sollen sie wieder unter einem Dach zusammenwohnen, so dass aber jede seinen eigenen Bereich hat.
Die gemeinsamen Erinnerungen und der emotionalen Wert sprachen für einen Umbau anstatt eines Neubaus. Es galt neuen Wohnstandard und Nutzung mit der Geschichte und dem Charakter des Bestandes zu vereinen.
Die gemeinsamen Erinnerungen und der emotionalen Wert sprachen für einen Umbau anstatt eines Neubaus. Es galt neuen Wohnstandard und Nutzung mit der Geschichte und dem Charakter des Bestandes zu vereinen.
Beauté
Eingebettet in einen üppigen Baumbestand mit Ausblick auf freie Wiesen und diverse Pflanzenarten, strahlt der Standort des Zweifamilienhaus Ruhe und Geborgenheit aus.
Um den Ausblick ins Grüne zu zelebrieren wurde die Fassade an bestimmten Stellen weiter geöffnet. Zusammen mit der neuen Raumaufteilung entstanden schöne Lichtsituationen und Durchblicke. Grosszügigkeit durch Überhöhen und offene Räume und Geborgenheit durch natürliche Materialien. Dabei wurden persönliche Vorlieben respektiert.
Um den Ausblick ins Grüne zu zelebrieren wurde die Fassade an bestimmten Stellen weiter geöffnet. Zusammen mit der neuen Raumaufteilung entstanden schöne Lichtsituationen und Durchblicke. Grosszügigkeit durch Überhöhen und offene Räume und Geborgenheit durch natürliche Materialien. Dabei wurden persönliche Vorlieben respektiert.
Caractéristiques
Lieu
Horgen
Catégorie d'ouvrage (SIA 102)
Habitat
Type de tâche
Transformation
Type de procédure
Concours
Type de concours
-
Coût de construction en CHF (SIA 416)
1'387'430.00
Surface de plancher en m² (SIA 416)
446
Planification
2021 → 2021
Réalisation
2021 → 2022
Année de mise en service
2022
Intervenants