St. Alban-Vorstadt 12

Die Christoph-Merian-Stiftung beauftragte Herzog & de Meuron für die Konzeption eines innovativen Holzbaus als Ersatz für die ehemalige Schulzahnklinik in der Basler Altstadt, in der Absicht einen städtebaulichen und kulturellen Beitrag zur Stadtentwicklung zu leisten.
Der Standort in der St. Alban-Vorstadt ist historisch bedeutsam und liegt in der Nähe von kulturellen Einrichtungen. Das Projekt strebt an, die historischen Proportionen des ursprünglichen Gebäudes aus dem 19. Jahrhundert wiederherzustellen und großzügige Räume zu schaffen.
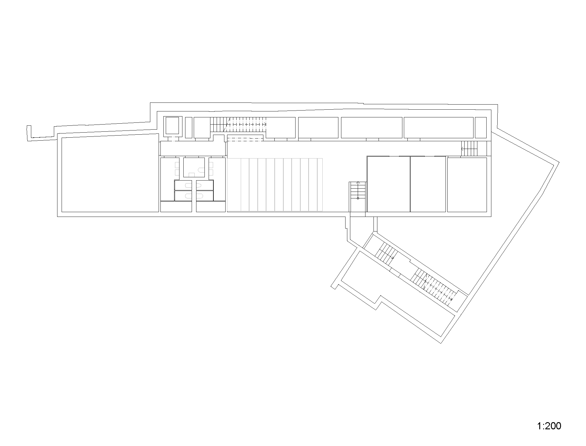
Der Neubau bietet auf drei Obergeschossen rund 50 Büroarbeitsplätze und fördert offene Kommunikation und flexible Zusammenarbeit. Das Erdgeschoss wird für Begegnungen genutzt, das Untergeschoss beherbergt Archive und technische Anlagen. Das Gebäude ist ein nachhaltiger Holzbau. Im Innenraum wird die Holzästhetik betont, was zur optimalen Raumakustik und einem angenehmen Arbeitsumfeld beiträgt.
Der Standort in der St. Alban-Vorstadt ist historisch bedeutsam und liegt in der Nähe von kulturellen Einrichtungen. Das Projekt strebt an, die historischen Proportionen des ursprünglichen Gebäudes aus dem 19. Jahrhundert wiederherzustellen und großzügige Räume zu schaffen.
Der Neubau bietet auf drei Obergeschossen rund 50 Büroarbeitsplätze und fördert offene Kommunikation und flexible Zusammenarbeit. Das Erdgeschoss wird für Begegnungen genutzt, das Untergeschoss beherbergt Archive und technische Anlagen. Das Gebäude ist ein nachhaltiger Holzbau. Im Innenraum wird die Holzästhetik betont, was zur optimalen Raumakustik und einem angenehmen Arbeitsumfeld beiträgt.
























Textes Critères de Davos
Gouvernance
Die CMS ist eine gemeinnützige Stiftung in Basel, die soziale,kulturelle und ökologische Projekte fördert. Ihr Leitbild betont Nachhaltigkeit, sozialen Zusammenhalt, Transparenz und nachhaltige Vermögensbewirtschaftung als Kernprinzipien. Alle Projektbeteiligte kollaborieren transparent, von der CMS bis zu Architekten und Fachplanern. Der Bauplatz ist historisch belastet. Der Stiftungssitz ermöglicht an diesem Ort eine Neubewertung: Ein Wandel zu Nachhaltigkeit und sozialem Engagement.
Fonctionnalité
Das Stiftungshaus überzeugt durch hohe Funktionalität und Flexibilität: Die oberen Etagen dienen als Gemeinschaftsbüros und Meetingräume, flexibel gestaltbar. Ein halb-öffentlicher Hof fördert Kommunikation und Anpassungsfähigkeit und trägt zur Nutzungsvielfalt bei. Holzstruktur und Lauben ermöglichen eine einfache Umnutzung, z.B. zu einem einladenden Wohnhaus. Barrierefreiheit in Eingang und Erschliessung ist gewährleistet. Der Holzbau sorgt für angenehmes Raumklima und Tageslichtnutzung.
Environnement
Der Bau ist betont umweltfreundlich, sein Volumen maximal verdichtet, gleich der Umgebung. Die Aussenraumqualität ist verbessert: mehr Bäume, begrünte Fassaden für die Stadtökologie, wobei Pflaster mit Sandfugen für Stadtkühlung sorgt, die PV-Anlage auf dem Dach für Strom.Der Holzbau ohne chemische Anstriche ist arm an CO2.Eine Schadstoffanalyse führt zur Asbestentsorgung. Nachhaltigkeitsexperten begleiten die Planung.Energie kommt per Fernwärme, die Kühlung ist frei adiabat, das Licht LED.
Économie
Der öffentliche Hofraum ist eine Investition in den Mehrwert der Arbeitsplätze und die Quartiersverbundenheit. Die Holz-Metall-Fassade und unbehandelte Hölzer reduzieren den Unterhalt. Stiftungsrat und Finanzausschuss überwachten den Entwurf. Nachhaltige Bauweise und langfristige Nutzungsziele haben Vorrang über kurzfristiger Rendite. Die Investition in Nachhaltigkeit erfolgt kosteneffizient. Ressourcenschonende Bauweise, Serialität und maximale Hauptnutzfläche steigern die Wirtschaftlichkeit.
Diversité
Die Kernwerte der Stiftung sind ein tiefgehendes Anliegen und sollen durch die Gebäudenutzung gestärkt und erlebbar gemacht werden. Das Gebäude dient der Büronutzung und als Quartiersversammlungsort mit einem öffentlichen Hof. Der Innenhof fördert Begegnung und Kultur. Das Holzgebäude mit einer einladenden Anmutung lädt zur Kommunikation ein. Die Bauherrin strebt nach Transparenz und Offenheit, was sich in einem visuell transparenten Treppenhaus zeigt.
Contexte
Der Entwurf berücksichtigt den städtebaulichen Kontext: die Gebäudetypologie orientiert sich an der historischen Hofbebauung zusammen mit einem Pultdach und verknüpft eine zeitgemäße Bautiefe mit dem ursprünglichen Volumen. Konstruktiver Wetterschutz und Laubenraum betonen Tiefe und Maßstab, anstatt einer flächigen Verglasung. Der halböffentliche Hofraum lädt mit Bänken und Bäumen zum Verweilen ein. Die Bauweise respektiert die Geschichte des Ortes und korrigiert frühere "Bausünden".
Esprit du lieu
Das Bauwerk stärkt den Genius Loci in seinem ursprünglichen Charakter durch die Verbindung zum Ort und der Natur: Es fügt sich in den städtebaulichen Kontext ein, wirkt offen und filigran durch Laubengänge und die Natürlichkeit des Holzes; trägt zur Reparatur des historischen Teils der Stadt bei. Der sorgsam-schützende Umgang mit dem alten Baumbestand und die zusätzliche Begrünung mit dem Mehr an Biodiversität bewahren den historischen und naturbezogenen Charakter des Ortes als Oase im Stadtraum
Beauté
Die Schönheit des Christoph Merian Stiftungsgebäudes in Basel zeigt sich im kunstvollen Einsatz von Ornamentik, Profilen und Brettstapeln, welche dem Bau seine Eleganz verleihen, während Einfachheit und Transparenz ästhetische Wärme schaffen. Die haptische Qualität des Holzes und ausgewogene Proportionen verleihen dem Gebäude Freundlichkeit und Nahbarkeit. Die hohe Zufriedenheit der Bauherrin und Nutzer*innen stellt die gelungene ästhetische Umsetzung und Schönheit des Gebäudes unter Beweis.
Caractéristiques
Lieu
St. Alban- Vorstadt 12, Basel
Catégorie d'ouvrage (SIA 102)
Commerce et administration
Type de tâche
Nouvelle construction
Type de procédure
Mandat direct
Coût de construction en CHF (SIA 416)
Surface de plancher en m² (SIA 416)
1'380
Planification
2018 → 2023
Réalisation
2021 → 2023
Année de mise en service
2023
Intervenants
Architecture
Maître d'ouvrage
Génie civil
Technique du bâtiment
Architecture du paysage
Directions des travaux
Conception de façade
Christoph Etter Fassadenplanungen, Basel
Conception électrique
Ingénierie acoustique
Conception lumière
Génie et planification de l'environnement
Autre