Grand Hôtel du Cervin, Saint-Luc, Val d'Anniviers

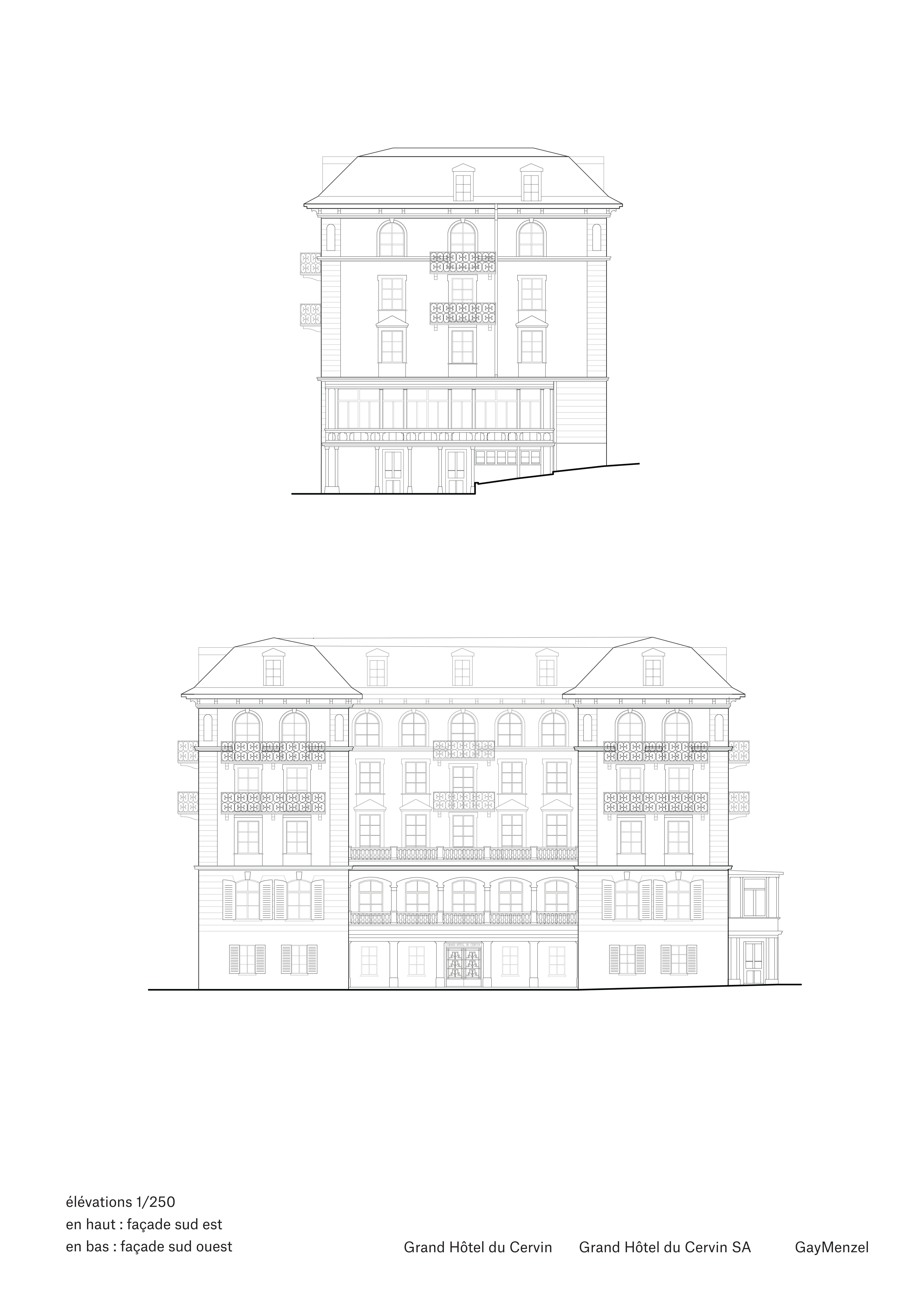
Cet hôtel bel époque a été érigé en 1893 par la famille Antille, dans le style néo-classique de l’architecture du Lausannois Elie Guinand.
La transformation d’aujourd’hui révèle la simplicité du grand hôtel alpin ; la reconstitution des couloirs d’origine jusqu’à la façade permet de libérer de grands espaces dans les ailes. Les chambres sont grandes et au nombre de 18, comportant de 3 à 6 lits. Dans les combles trois dortoirs sont aménagés, pour une offre de 99 lits au total.
La découverte de l’état d’origine du rez-de-chaussée a engendré une liberté dans la conception de la brasserie et du nouveau vestibule, où sont reproduits les décors retrouvés sur les parois dans les tons aubergine foncé, et de bleu de méthylène.
Un nouvel escalier mène à l’espace bien-être invitant le client à descendre en ralentissant son pas au fur et à mesure que l’escalier se déroule pour atteindre un niveau invitant à la relaxation.
L'équilibre entre ancien est nouveau se fait dans la cohérence d'un tout.
La transformation d’aujourd’hui révèle la simplicité du grand hôtel alpin ; la reconstitution des couloirs d’origine jusqu’à la façade permet de libérer de grands espaces dans les ailes. Les chambres sont grandes et au nombre de 18, comportant de 3 à 6 lits. Dans les combles trois dortoirs sont aménagés, pour une offre de 99 lits au total.
La découverte de l’état d’origine du rez-de-chaussée a engendré une liberté dans la conception de la brasserie et du nouveau vestibule, où sont reproduits les décors retrouvés sur les parois dans les tons aubergine foncé, et de bleu de méthylène.
Un nouvel escalier mène à l’espace bien-être invitant le client à descendre en ralentissant son pas au fur et à mesure que l’escalier se déroule pour atteindre un niveau invitant à la relaxation.
L'équilibre entre ancien est nouveau se fait dans la cohérence d'un tout.



















Testi Criteri Davos
Governance
Le bâtiment est acheté en 2013 par les actionnaires de la Grand Hôtel du Cervin SA. Le projet est accompagné d'un spa financé par la Commune. L'association des Amis du Cervin supporte également la démarche. Des subventions sont obtenues suite à la classification en note 2 de l’hôtel par les Monuments historiques du Canton du Valais.
Les Auberges de jeunesse contribuent par leur excellente connaissance de la transformation d’hôtels historiques (Hôtel Bella Lui, Château de Berthoud - prix ICOMOS).
Les Auberges de jeunesse contribuent par leur excellente connaissance de la transformation d’hôtels historiques (Hôtel Bella Lui, Château de Berthoud - prix ICOMOS).
Funzionalità
Le développement du Grand Hôtel du Cervin pour les groupes et familles émane d’un positionnement touristique, mais aussi de la spatialité des étages du bâtiment. La reconstitution des couloirs d’origine libère l’espace pour douze grandes chambres de six lits.
Sur le bel étage, les pièces communes sont revalorisées et complétées d’une salle de conférence qui favorise les rencontres entre clients.
Dans l’ensemble, la rénovation valorise le potentiel de l'existant et y adapte son programme.
Sur le bel étage, les pièces communes sont revalorisées et complétées d’une salle de conférence qui favorise les rencontres entre clients.
Dans l’ensemble, la rénovation valorise le potentiel de l'existant et y adapte son programme.
Ambiente
La transformation vise un retour à l’état d’origine de l’hôtel. La réutilisation d’un maximum d’éléments architecturaux, issus des couches historiques d’origine ou rapportés plus tardivement participe de l’approche de récupération.
Le bâtiment ainsi que le centre de bien-être sont chauffés par une centrale à plaquettes produites en Anniviers, construite en sous-sol à proximité de l’hôtel. Pour des raisons de coûts, les fenêtres ne sont pas changées et le bâtiment reste non isolé.
Le bâtiment ainsi que le centre de bien-être sont chauffés par une centrale à plaquettes produites en Anniviers, construite en sous-sol à proximité de l’hôtel. Pour des raisons de coûts, les fenêtres ne sont pas changées et le bâtiment reste non isolé.
Economia
Le Grand Hôtel du Cervin complète l’offre de la station en l’ouvrant à un public jeune, familial et sportif. À cette vision s’ajoute celle de l’avenir du tourisme de montagne, qui tend vers une fréquentation quatre saisons. Ainsi émerge par la Commune l’idée de l’espace bien-être en complément à l’hôtel.
Cette initiative d’abord privée aboutit à une réflexion plus globale, avec la participation de la Commune : le projet s’inscrit dans la réalité économique du Val d’Anniviers.
Cette initiative d’abord privée aboutit à une réflexion plus globale, avec la participation de la Commune : le projet s’inscrit dans la réalité économique du Val d’Anniviers.
Diversità
D’abord pensé comme un hôtel historique, le choix de l’utilisateur s’est porté sur les auberges de jeunesse. Aujourd’hui, le bel étage trouve un caractère plus semi-public, avec l’accueil d’activités comme le festival de jazz, les mariages ou les séminaires, pour favoriser des échanges dans un contexte plus large que la clientèle de l’hôtel. Au rez-de-chaussée, une brasserie est créée dans les anciens ateliers de conciergerie. Cet espace s’ouvre sur le village et permet ainsi un usage mixte.
Contesto
Le contexte est non seulement un palimpseste, il est fondamental parce qu’évocateur de sens. Il rappelle des souvenirs, provoque des associations, éveille l’imaginaire personnel. Ainsi des éléments issus du subjectif sont insérés dans le narratif. Ces moments rapportés forment avec les éléments issus des couches historiques une hétérogénéité cohérente, dans un objectif de connexion à un environnement de qualité. Nous appelons cette approche l’imaginaire contextuel.
Genius loci
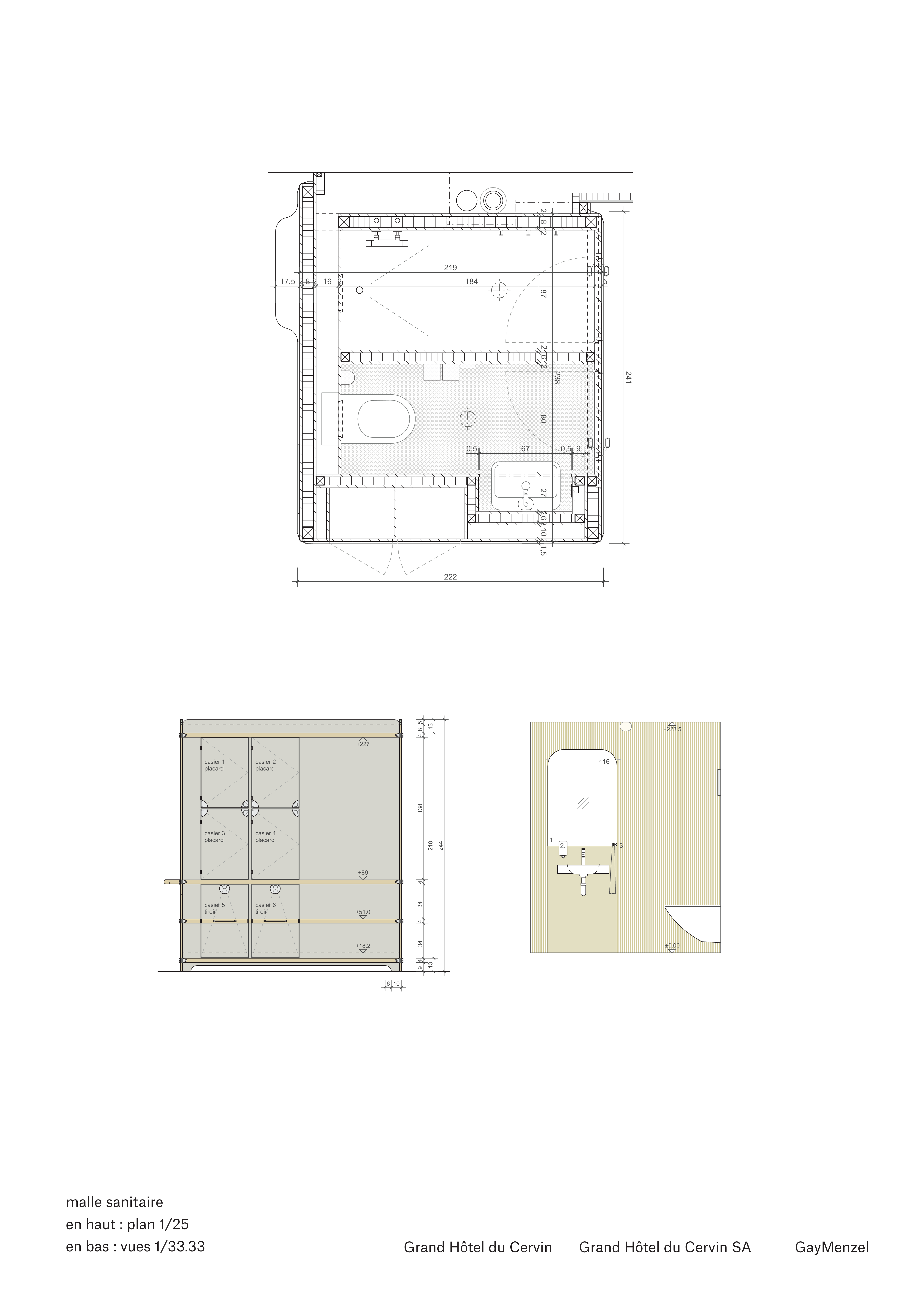
L’approche se concentre sur la mise en valeur des caractéristiques du grand hôtel Belle Epoque, où séjournait autrefois la société anglaise aisée pendant des périodes de longue durée. Les malles sanitaires dans les chambres fonctionnent comme des évocations de cet imaginaire lointain. Leurs détails rappellent aussi bien une malle de voyage qu’une cabine de train ou de bateau. Leur finition contraste avec la simplicité de l’hôtel, évoquant un bagage oublié qui parle d’un ailleurs.
Bellezza
L’approche questionne la beauté et cherche l’expression d’une nouvelle esthétique, au travers de l’imperfection. Les objets trouvés réinsérés ont plus de force d’évocation que de valeur esthétique : la mémoire du lieu et la cohérence de l’ensemble l’emportent. Les environnements deviennent beaux lorsqu’ils expriment des contradictions et laissent la place à l’évolution future. Hétérogènes, complexes, désordonnés, banals et riches à la fois, ils sont susceptibles de créer du lien.
Caratteristiche
Luogo
Saint-Luc, VS
Categoria di costruzione (SIA 102)
Ospitalità e turismo
Tipo di incarico
Rinnovo
Tipo di procedura
Concorsi
Forma di messa in concorrenza
Procedura su invito
Costi di costruzione in CHF (SIA 416)
8'250'000
Superficie di piano in m² (SIA 416)
2'800
Progettazione
2015 → 2019
Realizzazione
2019 → 2022
Anno di messa in servizio
2022
Partecipanti
Committente
Grand Hôtel du Cervin SA
Architettura
GayMenzel
Ingegneria civile
Cordonier & Rey SA
Tecnica degli edifici
Michellod & Clausen SA
Direzioni dei lavori
GayMenzel et Kittel SA
Progettazione elettrica
DPE Electrotechnique SA
Restauro
E. Lüthi-Graf, MF Monod, E. Favre-Bulle, les Murales
Conservazione del patrimonio
L. Grichting, P. Giromini
Fotografia
Philomène Hoël